Italiano
English
Español
العربية
307.500 €

Villa singola a Mirano (VE)

Villa in vendita • Mirano - Via Leonardo Da Vinci
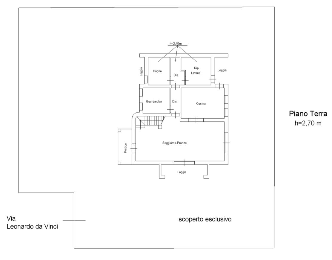
Villa singola di recente costruzione con terreno di 410 metri quadri situata a Mirano (VE) in via Leonardo Da Vinci, al piano terra composta da ampio soggiorno pranzo con scala, cucina, due disimpegni, camera, bagno, ripostiglio e lavanderia, logge, portico e pergolati coperti, ampio scoperto giardino dove insiste parte del più grande pergolato coperto; al piano primo da una camera matrimoniale con terrazza, ripostiglio attrezzato a bagno, disimpegno e atri vani sottotetto utilizzati come ulteriore bagno, camera da letto, guardaroba e ripostigli.


22REB è a disposizione per valutare come la nostra esperienza potrà favorirti nel realizzare il tuo miglior investimento.


L'immobile è oggetto di vendita giudiziaria.

22REB non si occupa di attività di intermediazione imm. di cui alla legge 39/89.
 Per motivi di privacy la foto dell'immobile/terreno è indicativa ma non esaustiva.
Caratteristiche principali
Codice
GM3647/25
Città
Mirano
Categoria
Villa
Prezzo
307.500 €
Locali
7,5
Camere
3
Bagni
3
Mq
177
Classe energetica
In fase di valutazione
Mappa
Via Leonardo Da Vinci , Mirano (VE)
Condividi su
Cookie preference