Italiano
English
Español
العربية
84.750 €

Villa singola a Monfumo (TV)

Villa in vendita • Monfumo - Via Belvedere
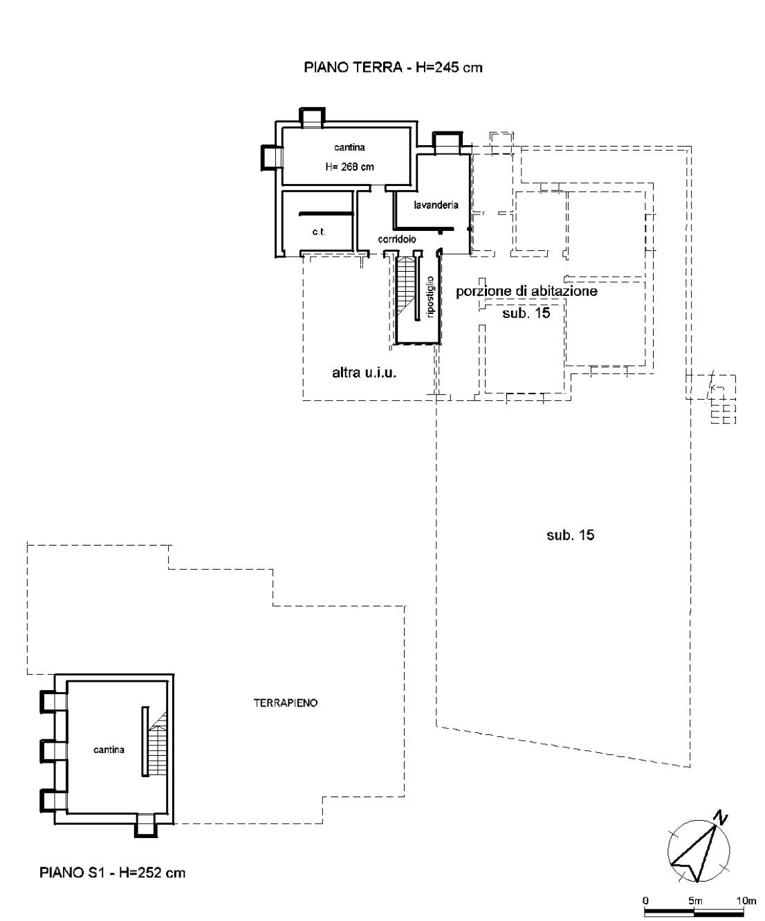
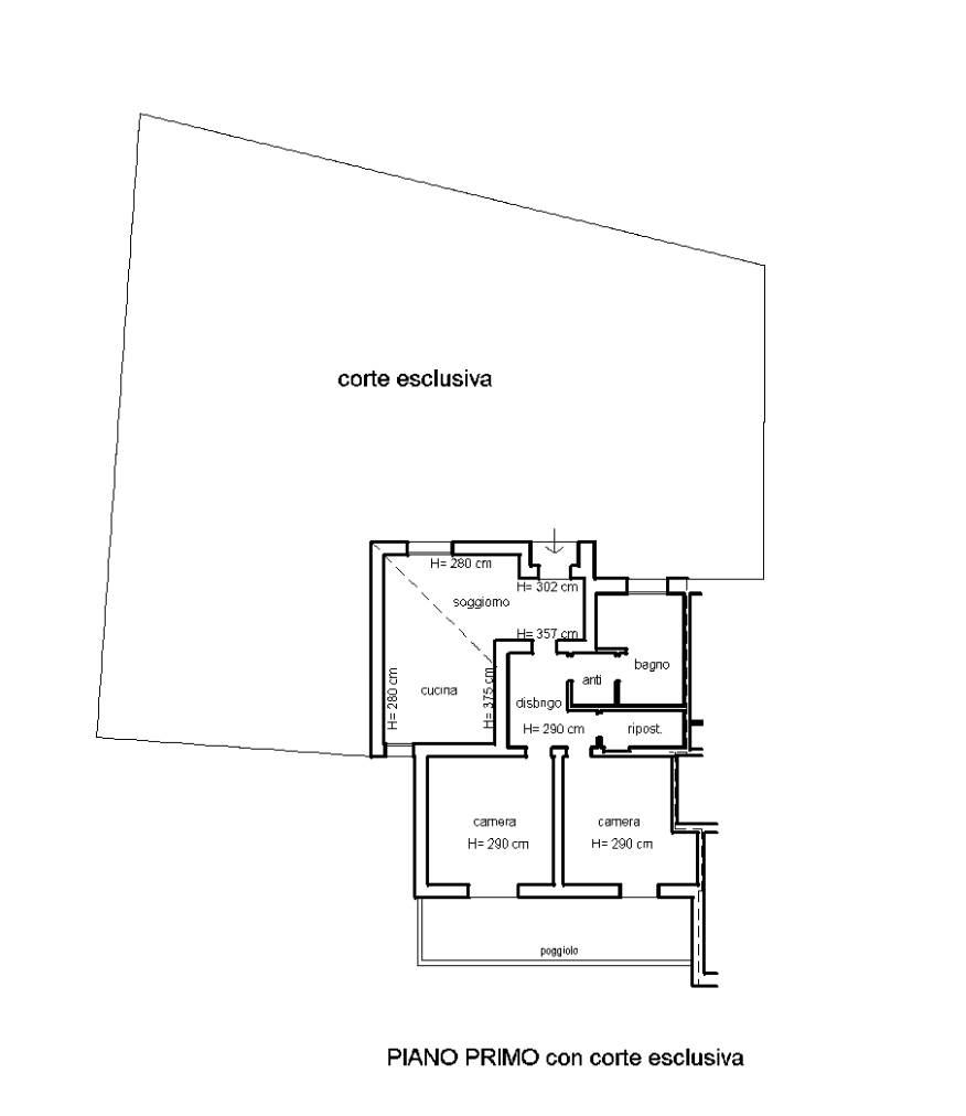
Villa singola con annesso laboratorio situata in Comune di Monfumo (TV) in via
Belvedere, costituita al piano terra da due porticati, soggiorno, una cucina, ampia stanza, tre camere da letto, disimpegno, bagno e w.c.; al piano primo da due camere da letto e piccola loggia; al piano primo sottostrada da una cantina, laboratorio, deposito, centrale termica e porticato esterno. I terreni di pertinenza hanno superficie catastale di 4.885 metri quadri.


22REB è a disposizione per valutare come la nostra esperienza potrà favorirti nel realizzare il tuo miglior investimento.


L'immobile è oggetto di vendita giudiziaria.

22REB non si occupa di attività di intermediazione imm. di cui alla legge 39/89.
 Per motivi di privacy la foto dell'immobile/terreno è indicativa ma non esaustiva.
Caratteristiche principali
Codice
GM3649/25
Città
Monfumo
Categoria
Villa
Prezzo
84.750 €
Locali
11
Camere
5
Bagni
2
Mq
333
Classe energetica
In fase di valutazione
Mappa
Via Belvedere , Monfumo (TV)
Condividi su
Cookie preference