Italiano
English
Español
العربية
576.563 €

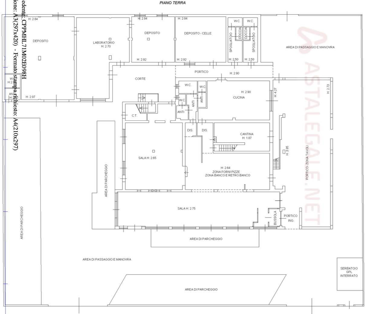
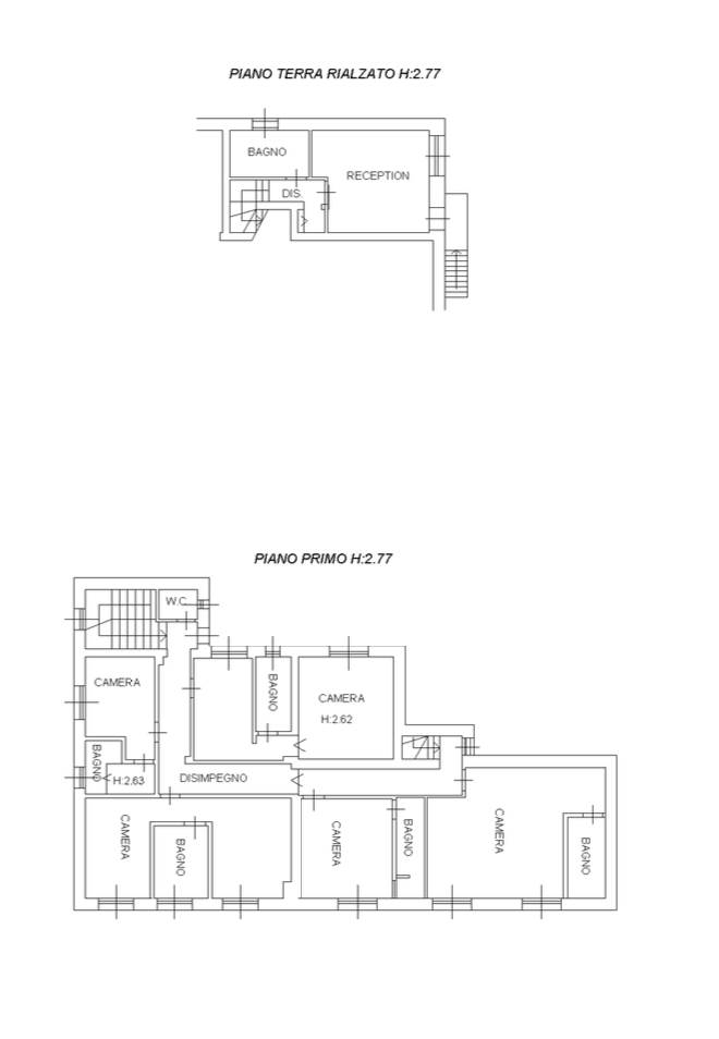
Complesso turistico-ricettivo a San Canzian d'Isonzo (GO)

Hotel in vendita • San Canzian d'Isonzo (Terranova) - Via Grado
Complesso a destinazione turistico ricettiva, sorge in zona periferica del Comune di San Canzian d’Isonzo (GO) in località Terranova, costituto da zona ristorazione al piano terra con ristorante, bar, pizzeria e portico esterno; zona ricettiva al piano primo con sei camere tutte dotate di bagno privato.


22REB è a disposizione per valutare come la nostra esperienza potrà favorirti nel realizzare il tuo miglior investimento.


L'immobile è oggetto di vendita giudiziaria.

22REB non si occupa di attività di intermediazione imm. di cui alla legge 39/89.
 Per motivi di privacy la foto dell'immobile/terreno è indicativa ma non esaustiva.
Caratteristiche principali
Codice
GM3653/25
Città
San Canzian d'Isonzo (Terranova)
Categoria
Hotel
Prezzo
576.563 €
Locali
1
Mq
1080,39
Classe energetica
In fase di valutazione
Mappa
Via Grado , San Canzian d'Isonzo (GO)
Condividi su
Cookie preference