Italiano
English
Español
العربية
88.500 €

Appartamento a Verona (VR)

Appartamento in vendita • Verona - Via Contrada Polese
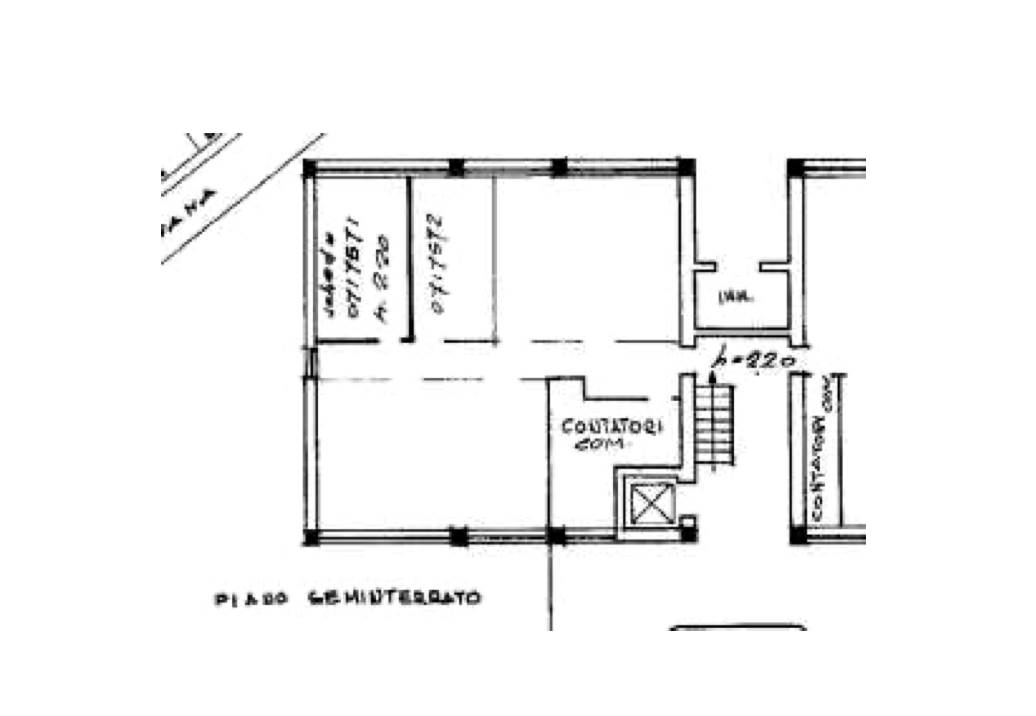
Appartamento al piano rialzato con una cantina al piano seminterrato in complesso condominiale situato in Comune di Verona (VR) in via Contrada Polese, composto da un ingresso, una cucina, soggiorno, disimpegno, ripostiglio-lavanderia, tre camere da letto ed un bagno.


22REB è a disposizione per valutare come la nostra esperienza potrà favorirti nel realizzare il tuo miglior investimento.


L'immobile è oggetto di vendita giudiziaria.

22REB non si occupa di attività di intermediazione imm. di cui alla legge 39/89.
 Per motivi di privacy la foto dell'immobile/terreno è indicativa ma non esaustiva.
Caratteristiche principali
Codice
GM3667/25
Città
Verona
Categoria
Appartamento
Prezzo
88.500 €
Locali
6,5
Camere
3
Bagni
1
Mq
112
Piano
Rialzato
Classe energetica
In fase di valutazione
Mappa
Via Contrada Polese , Verona (VR)
Condividi su
Cookie preference