Italiano
English
Español
العربية
303.000 €

Compendio agricolo a Gazzo Veronese (VR)

Azienda Agricola in vendita • Gazzo Veronese - Via Olmo
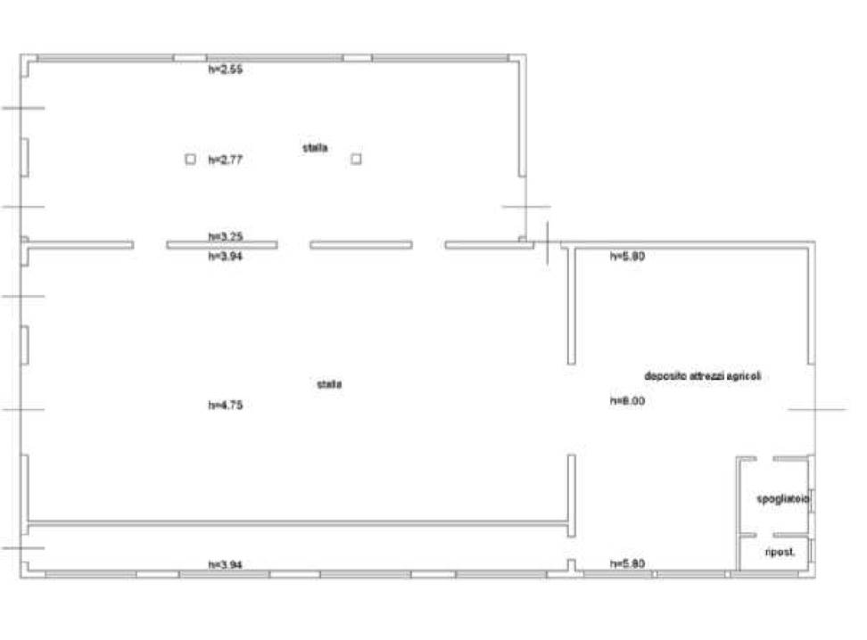
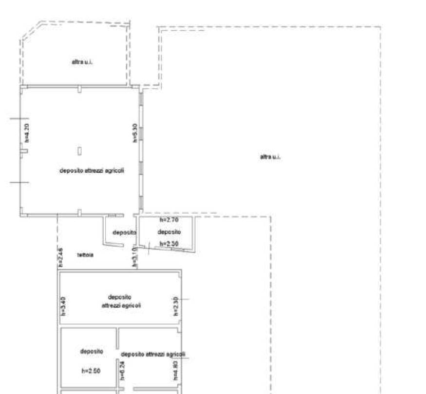
Compendio agricolo situato a Gazzo Veronese (VR) con accesso pedonale e carraio per una parte dei beni da via Olmo e per un’altra parte da strada provinciale 23, costituito da fabbricato ad uso deposito-stalla e terreni non recintati e coltivati per una superficie catastale complessiva di 54.979 metri quadri.

Stato di occupazione: Contratto d’affitto agricolo in essere, con scadenza il 30/04/2031.


22REB è a disposizione per valutare come la nostra esperienza potrà favorirti nel realizzare il tuo miglior investimento.


L'immobile è oggetto di vendita giudiziaria.

22REB non si occupa di attività di intermediazione imm. di cui alla legge 39/89.
 Per motivi di privacy la foto dell'immobile/terreno è indicativa ma non esaustiva.
Caratteristiche principali
Codice
GM3668/25
Città
Gazzo Veronese
Categoria
Azienda Agricola
Prezzo
303.000 €
Locali
1
Mq
2955
Classe energetica
In fase di valutazione
Mappa
Via Olmo , Gazzo Veronese (VR)
Condividi su
Cookie preference