Italiano
English
Español
العربية
223.500 €

Complesso immobiliare a Paese (TV)

Negozio in vendita • Paese - Via Monsignor Candido Breda
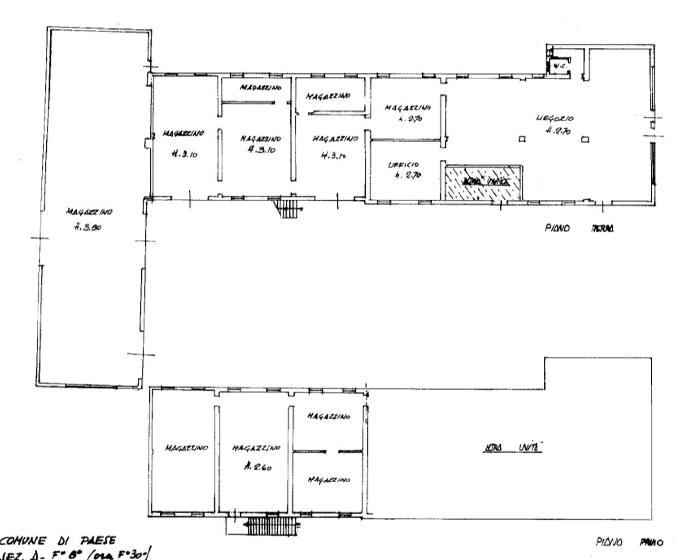
Fabbricato ad uso commerciale ed abitativo con area scoperta situato a Paese (TV) in via Monsignor Candido Breda, composto al piano terra da negozio, ufficio e magazzini; al piano primo parte a residenza e parte a magazzino. Capannone ad un piano adibito a magazzino. L’area esterna è in parte coperta da tettoie. Abitazione al piano primo composta da un ingresso, soggiorno, una cucina, due camere da letto, due bagni, stanza, sgombero e terrazza.


22REB è a disposizione per valutare come la nostra esperienza potrà favorirti nel realizzare il tuo miglior investimento.


L'immobile è oggetto di vendita giudiziaria.

22REB non si occupa di attività di intermediazione imm. di cui alla legge 39/89.
 Per motivi di privacy la foto dell'immobile/terreno è indicativa ma non esaustiva.
Caratteristiche principali
Codice
GM3676/25
Città
Paese
Categoria
Negozio
Prezzo
223.500 €
Locali
7
Camere
2
Bagni
2
Mq
408,67
Classe energetica
In fase di valutazione
Mappa
Via Monsignor Candido Breda , Paese (TV)
Condividi su
Cookie preference