Italiano
English
Español
العربية
187.500 €

Villetta a schiera a Lonigo (VI)

Villetta schiera in vendita • Lonigo - Via Gorizia
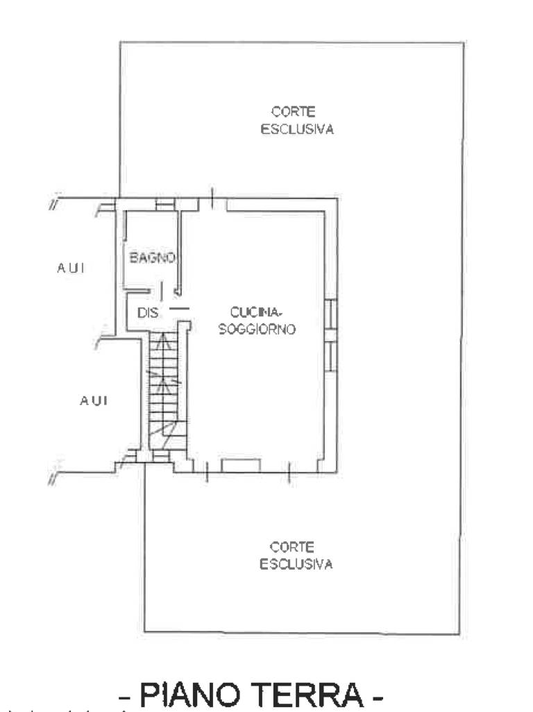
Villetta a schiera su tre livelli con annessa autorimessa situata a Lonigo (VI) in via Gorizia, composta da locale ingresso-soggiorno-cucina, servizio igienico e area di corte esclusiva al piano terra; tre camere da letto, un bagno e due poggioli al piano primo; disbrigo, cantina e garage al piano interrato.


22REB è a disposizione per valutare come la nostra esperienza potrà favorirti nel realizzare il tuo miglior investimento.


L'immobile è oggetto di vendita giudiziaria.

22REB non si occupa di attività di intermediazione imm. di cui alla legge 39/89.
 Per motivi di privacy la foto dell'immobile/terreno è indicativa ma non esaustiva.
Caratteristiche principali
Codice
GM3706/25
Città
Lonigo
Categoria
Villetta schiera
Prezzo
187.500 €
Locali
6
Camere
3
Bagni
2
Mq
147
Box
1
Mq Box
42
Classe energetica
In fase di valutazione
Mappa
Via Gorizia , Lonigo (VI)
Condividi su
Cookie preference