Italiano
English
Español
العربية
115.500 €

Complesso immobiliare a Caprino Veronese (VR)

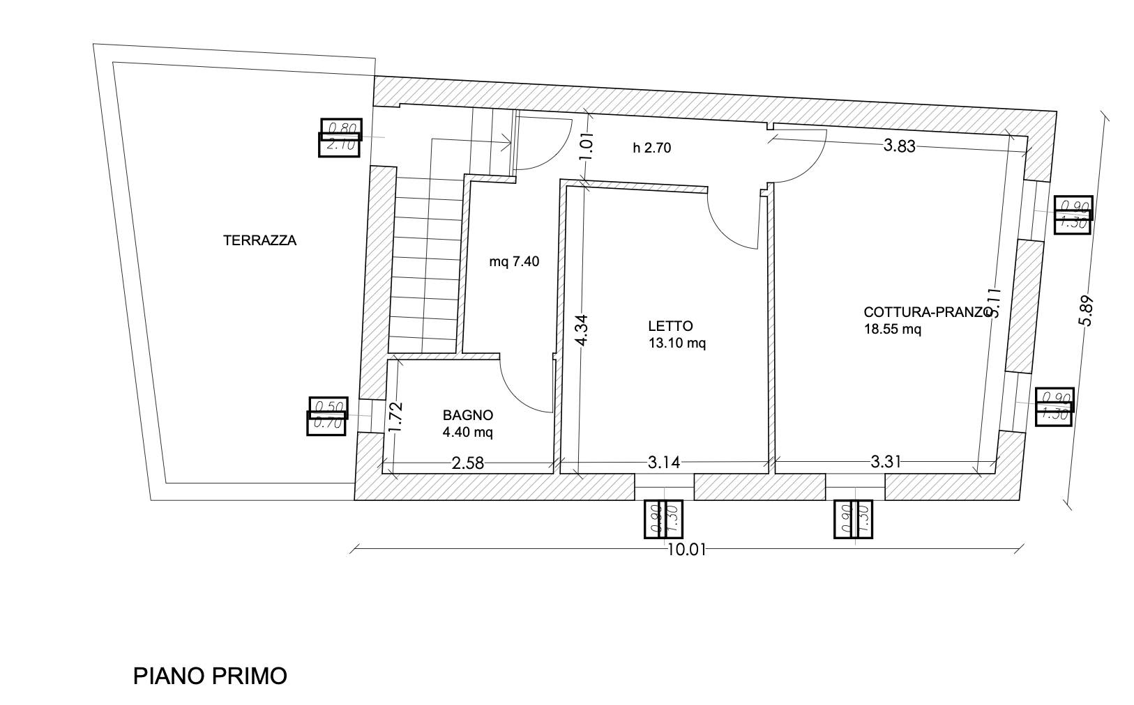
Appartamento in vendita • Caprino Veronese (Pesina) - Via Corrubio
Complesso immobiliare situato in Comune di Caprino Veronese (VR), frazione Pesina in via Corrubio, costituito da ufficio (adibito ad appartamento) di 66 metri quadri al piano terra con soprastante appartamento di 54 metri quadri con terrazzo al piano primo ed annessa cortile pertinenziale, due posti auto ed una cantina.


22REB è a disposizione per valutare come la nostra esperienza potrà favorirti nel realizzare il tuo miglior investimento.


L'immobile è oggetto di vendita giudiziaria.

22REB non si occupa di attività di intermediazione imm. di cui alla legge 39/89.
 Per motivi di privacy la foto dell'immobile/terreno è indicativa ma non esaustiva.
Caratteristiche principali
Codice
GM3717/25
Città
Caprino Veronese (Pesina)
Categoria
Appartamento
Prezzo
115.500 €
Locali
4,5
Mq
120
Classe energetica
In fase di valutazione
Mappa
Via Corrubio , Caprino Veronese (VR)
Condividi su
Cookie preference