Italiano
English
Español
العربية
100.275 €

Villa bifamiliare a Bussolengo (VR)

Villa Bifamiliare in vendita • Bussolengo - Via Castelfidardo
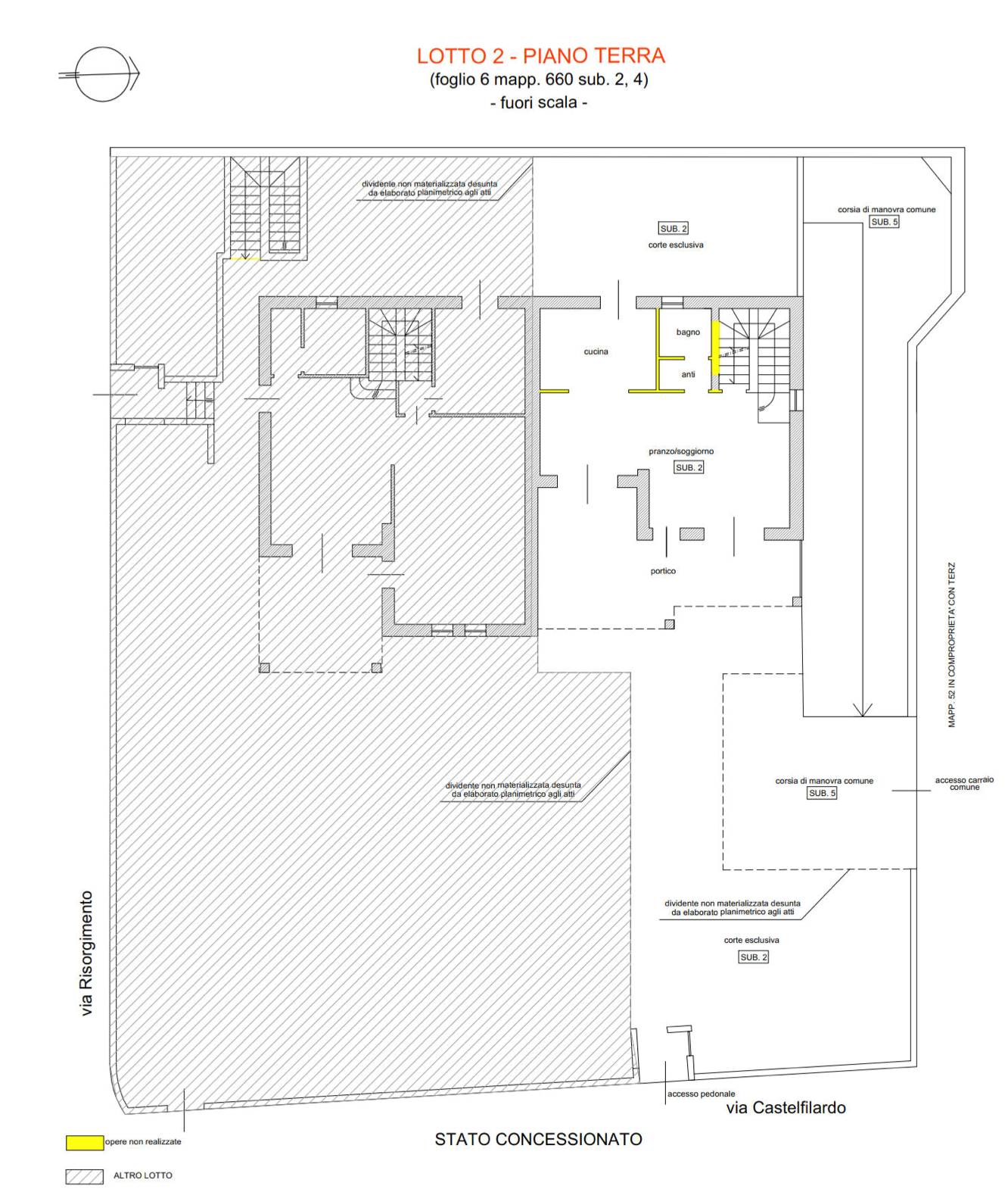
Porzione di villa bifamiliare al grezzo disposta su tre livelli con annessi portico e corti esclusive, oltre a pertinenziale autorimessa al piano interrato situata a Bussolengo (VR) in via Castelfidardo, per una superficie catastale complessiva di 203 metri quadri.


22REB è a disposizione per valutare come la nostra esperienza potrà favorirti nel realizzare il tuo miglior investimento.


L'immobile è oggetto di vendita giudiziaria.

22REB non si occupa di attività di intermediazione imm. di cui alla legge 39/89.
 Per motivi di privacy la foto dell'immobile/terreno è indicativa ma non esaustiva.
Caratteristiche principali
Codice
GM3721/25
Città
Bussolengo
Categoria
Villa Bifamiliare
Prezzo
100.275 €
Locali
9,5
Mq
203
Box
1
Mq Box
30
Classe energetica
In fase di valutazione
Mappa
Via Castelfidardo , Bussolengo (VR)
Condividi su
Cookie preference