Italiano
English
Español
العربية
3.630.000 €

Opificio a Quinto Vicentino (VI)

Laboratorio in vendita • Quinto Vicentino - Via Postumia
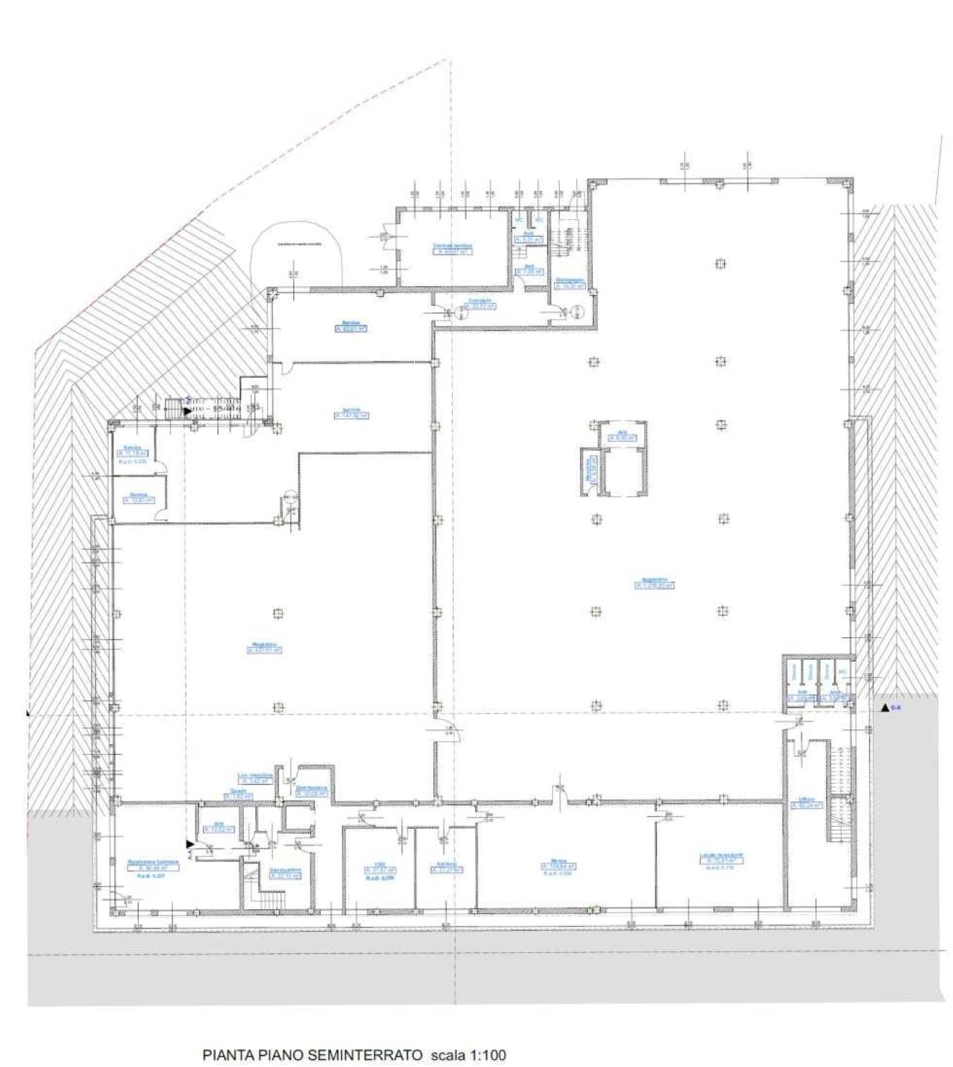
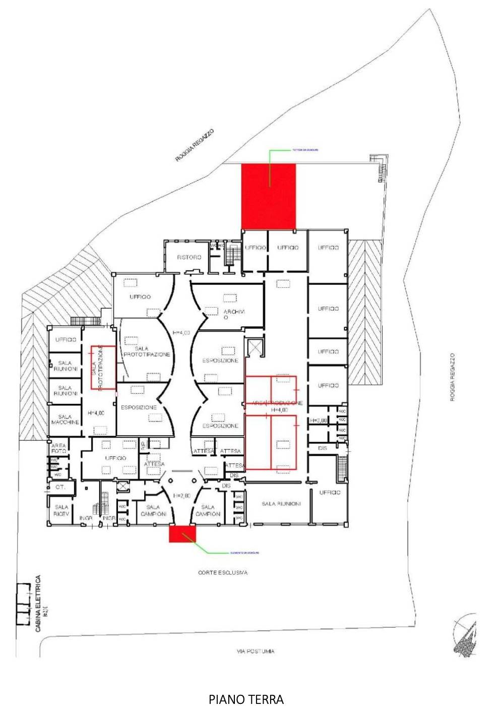
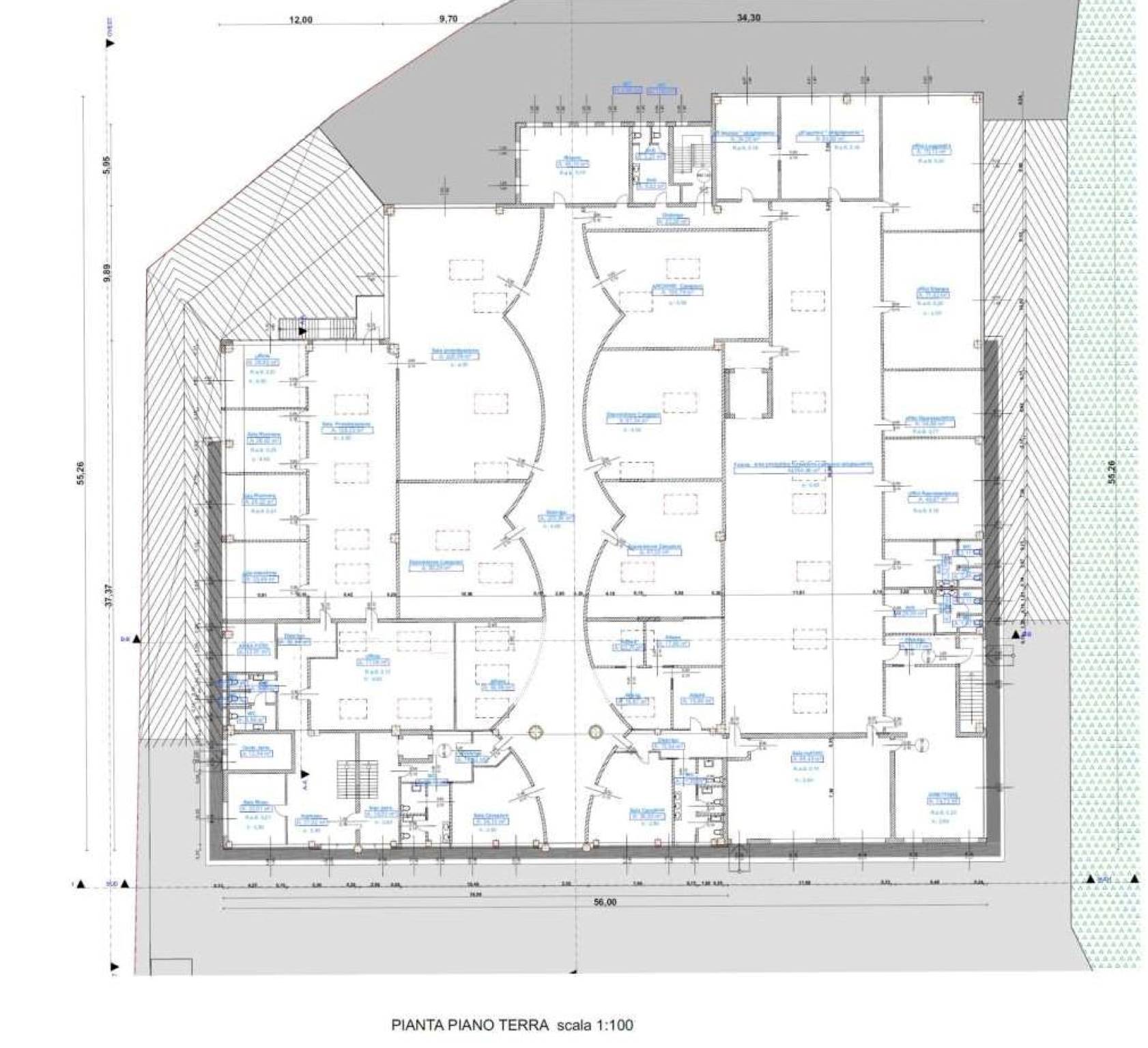
Opificio posto lungo la Strada Regionale Postumia, ubicato a quattro chilometri dal casello di Vicenza Nord e posto in posizione centrale rispetto all’area di pertinenza, circondato su tre lati da una rampa servente gli accessi carrai del piano interrato. Il piano terra è destinato ad area direzionale ed espositiva, costituita da showroom con finiture apprezzabili ed un’altezza interna di circa 4,00 ml. Il piano primo, posto nella porzione a Sud-Ovest, è destinato ad uffici con un’altezza di 2,85 ml. Il piano interrato, raggiungibile da accessi carrabili ha un’altezza di 2,70 ml., la superficie è stata indicata in 2.220 mq a destinazione magazzino e 530 mq a servizi.


22REB è a disposizione per valutare come la nostra esperienza potrà favorirti nel realizzare il tuo miglior investimento.


L'immobile è oggetto di vendita giudiziaria.

22REB non si occupa di attività di intermediazione imm. di cui alla legge 39/89.
 Per motivi di privacy la foto dell'immobile/terreno è indicativa ma non esaustiva.
Caratteristiche principali
Codice
GM3730/25
Città
Quinto Vicentino
Categoria
Laboratorio
Prezzo
3.630.000 €
Locali
1
Mq
5330
Classe energetica
In fase di valutazione
Mappa
Via Postumia , Quinto Vicentino (VI)
Condividi su
Cookie preference