Italiano
English
Español
العربية
191.440 €

Villa bifamiliare a Sarego (VI)

Villa Bifamiliare in vendita • Sarego - Via Dante Alighieri
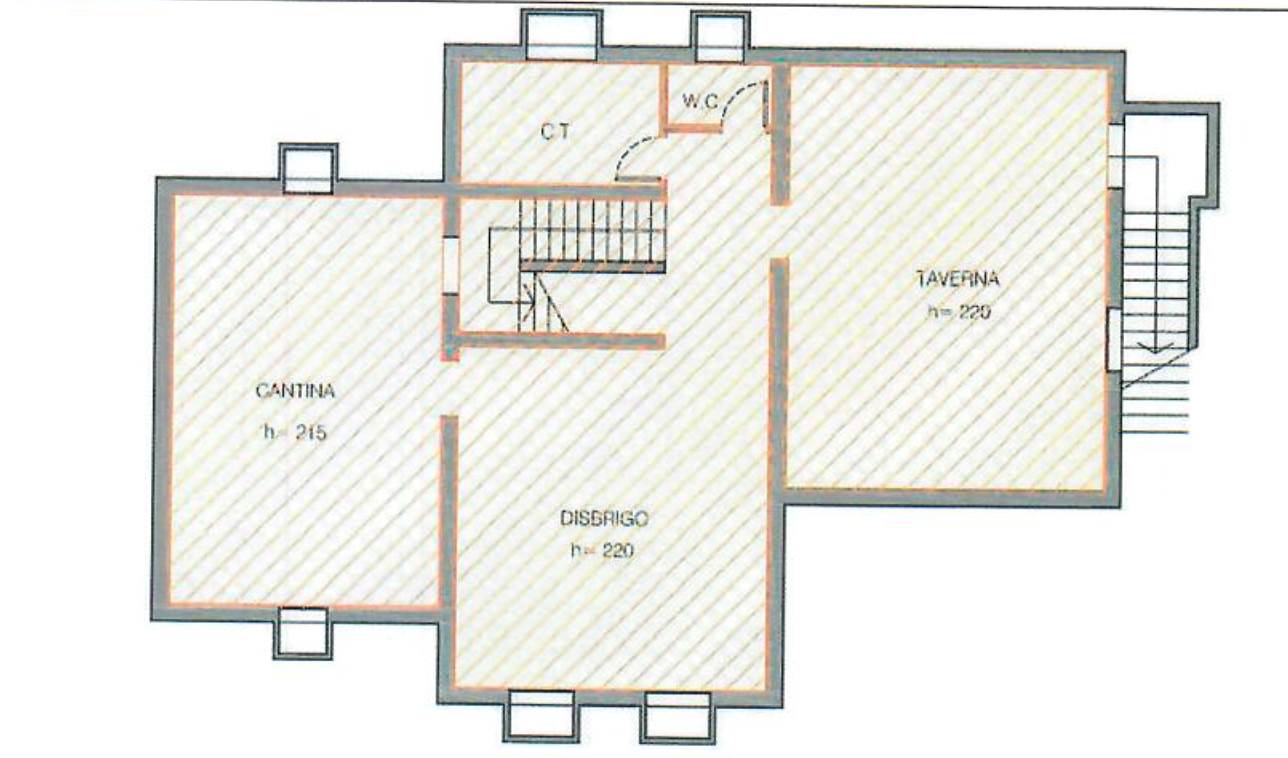
Porzione di bifamiliare su tre livelli con autorimessa doppia e corte di pertinenza situata a Sarego (VI) in via Dante Alighieri, composta al piano interrato da cantina, centrale termica, servizio igienico, disbrigo ed una taverna; al piano terra si trovano autorimessa, una cucina, soggiorno, bagno ed antibagno,
disimpegno e portico; al piano primo sono presenti soffitta, disimpegno, antibagno, bagno, tre camere da letto di cui una con ripostiglio.


22REB è a disposizione per valutare come la nostra esperienza potrà favorirti nel realizzare il tuo miglior investimento.


L'immobile è oggetto di vendita giudiziaria.

22REB non si occupa di attività di intermediazione imm. di cui alla legge 39/89.
 Per motivi di privacy la foto dell'immobile/terreno è indicativa ma non esaustiva.
Caratteristiche principali
Codice
GM3731/25
Città
Sarego
Categoria
Villa Bifamiliare
Prezzo
191.440 €
Locali
10
Camere
3
Bagni
3
Mq
359,13
Box
1
Mq Box
21
Classe energetica
In fase di valutazione
Mappa
Via Dante Alighieri , Sarego (VI)
Condividi su
Cookie preference