Italiano
English
Español
العربية
296.000 €

Laboratorio a Vicenza (VI)

Laboratorio in vendita • Vicenza - Via Vecchia Ferriera
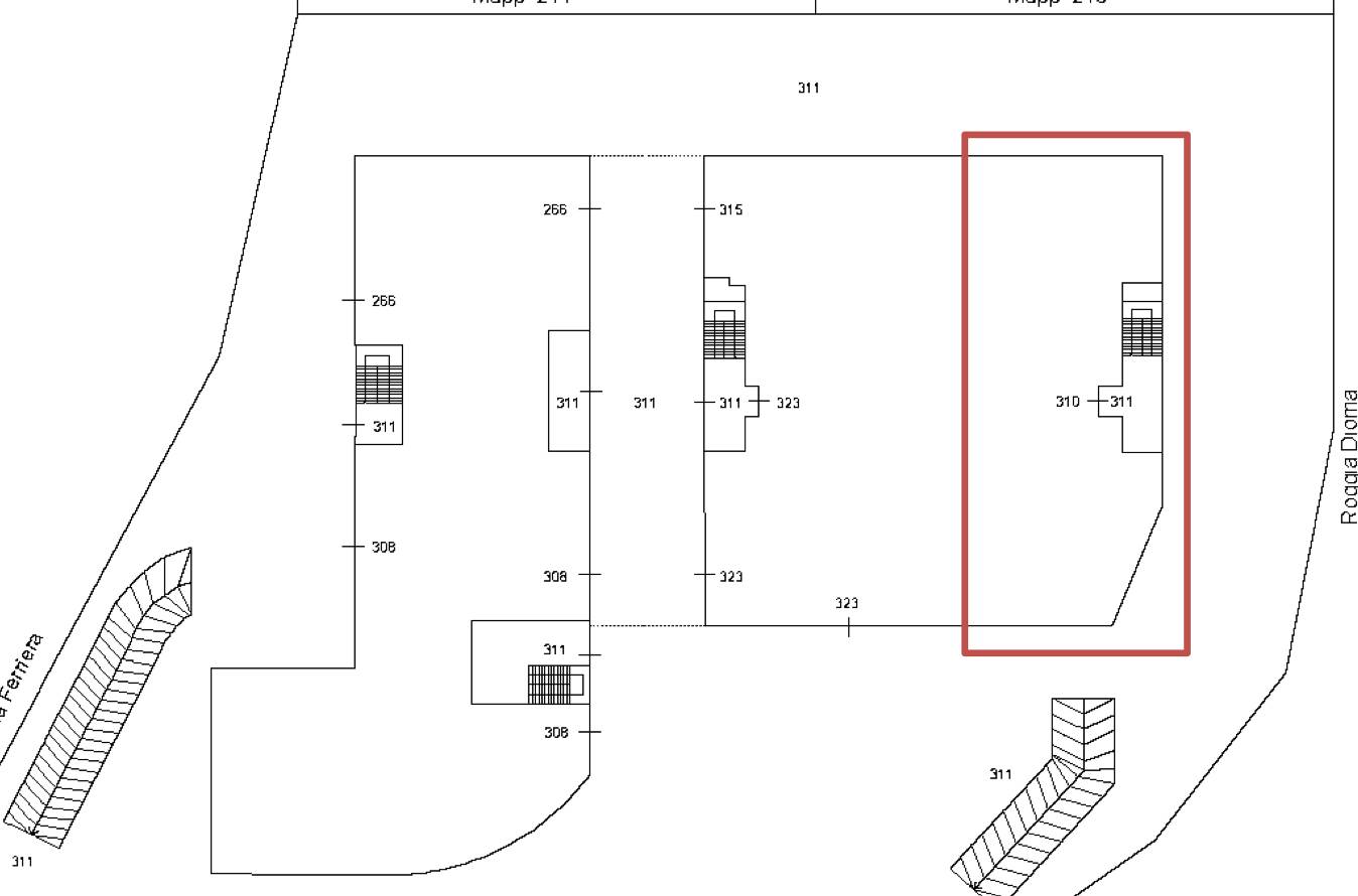
Unità immobiliare produttiva al piano terra a destinazione laboratorio situata a Vicenza (VI) in via Vecchia Ferriera, per una superficie complessiva lorda di 900 metri quadri e n. 15 posti auto al piano interrato.

Stato di occupazione: Immobile libero.


22REB è a disposizione per valutare come la nostra esperienza potrà favorirti nel realizzare il tuo miglior investimento.


L'immobile è oggetto di vendita giudiziaria.

22REB non si occupa di attività di intermediazione imm. di cui alla legge 39/89.
 Per motivi di privacy la foto dell'immobile/terreno è indicativa ma non esaustiva.
Caratteristiche principali
Codice
$GM3738/25
Città
Vicenza
Categoria
Laboratorio
Prezzo
296.000 €
Locali
1
Mq
900
Posti auto
15
Classe energetica
In fase di valutazione
Mappa
Via Vecchia Ferriera , Vicenza (VI)
Condividi su
Cookie preference