Italiano
English
Español
العربية
245.250 €

Appartamento a Vicenza (VI)

Appartamento in vendita • Vicenza - Via Legione Antonini
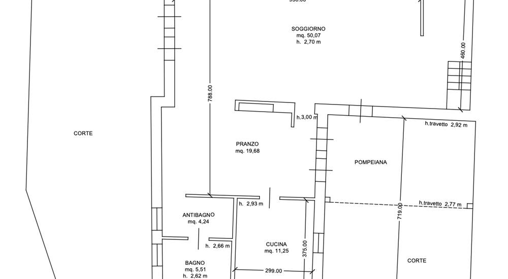
Appartamento al piano terra e primo con autorimessa presso il complesso condominiale denominato “CORTE 123” situato a Vicenza (VI) in via Legione Antonini, composto da accesso da area esterna comune, ingresso in soggiorno, sala da pranzo, una cucina, bagno e due corti esclusive; al piano primo, tre camere da letto, due bagni, un corridoio ed un terrazzo.


22REB è a disposizione per valutare come la nostra esperienza potrà favorirti nel realizzare il tuo miglior investimento.


L'immobile è oggetto di vendita giudiziaria.

22REB non si occupa di attività di intermediazione imm. di cui alla legge 39/89.
 Per motivi di privacy la foto dell'immobile/terreno è indicativa ma non esaustiva.
Caratteristiche principali
Codice
GM3743/25
Città
Vicenza
Categoria
Appartamento
Prezzo
245.250 €
Locali
8,5
Camere
3
Bagni
3
Mq
178,82
Box
1
Mq Box
45
Classe energetica
In fase di valutazione
Mappa
Via Legione Antonini , Vicenza (VI)
Condividi su
Cookie preference