Italiano
English
Español
العربية
164.550 €

Unità direzionale a Vicenza (VI)

Ufficio in vendita • Vicenza - Galleria del Pozzo Rosso
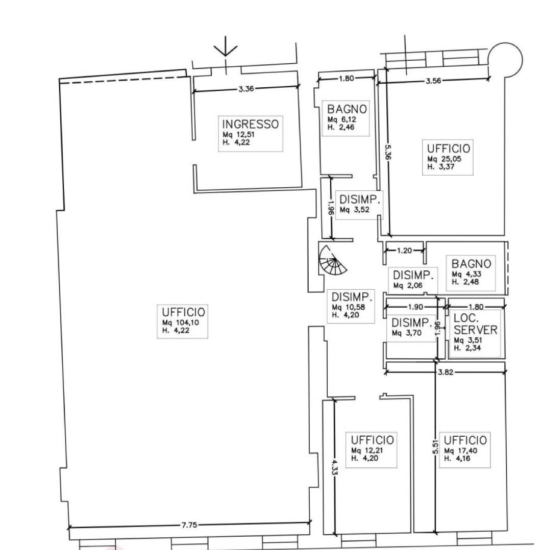
Unità direzionale al piano terzo con locale ad uso deposito-ripostiglio allo stesso piano in palazzo storico su quattro piani fuori terra ed uno interrato, denominato “Palazzo Thiene” situato a Vicenza (VI) in Galleria del Pozzo Rosso. L’accesso avviene da vano scala comune a cui si giunge dall’ingresso posto all’interno della galleria commerciale denominata “Galleria del Pozzo Rosso”; la grande scalinata del vano scala è dotata di ascensore che collega tutti i piani del palazzo. L’unità direzionale risulta articolata da un ingresso, grande locale ad uso ufficio con affaccio su corso palladio, disimpegno, tre locali ad uso ufficio di cui due con affaccio su corso palladio e uno con affaccio sul cortile interno, disimpegno, due bagni di cui uno con antibagno e wc. Il locale ad uso deposito-ripostiglio adiacente all’unità direzionale, è costituito da un unico vano di forma triangolare allungata con aero-illuminazione da finestra sul lato est.


22REB è a disposizione per valutare come la nostra esperienza potrà favorirti nel realizzare il tuo miglior investimento.


L'immobile è oggetto di vendita giudiziaria.

22REB non si occupa di attività di intermediazione imm. di cui alla legge 39/89.
 Per motivi di privacy la foto dell'immobile/terreno è indicativa ma non esaustiva.
Caratteristiche principali
Codice
GM3752/25
Città
Vicenza
Categoria
Ufficio
Prezzo
164.550 €
Locali
7,5
Bagni
2
Mq
235
Piano
3
Classe energetica
In fase di valutazione
Mappa
Galleria del Pozzo Rosso , Vicenza (VI)
Condividi su
Cookie preference