Italiano
English
Español
العربية
149.700 €

Appartamento a Vicenza (VI)

Appartamento in vendita • Vicenza - Galleria del Pozzo Rosso
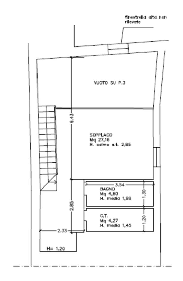
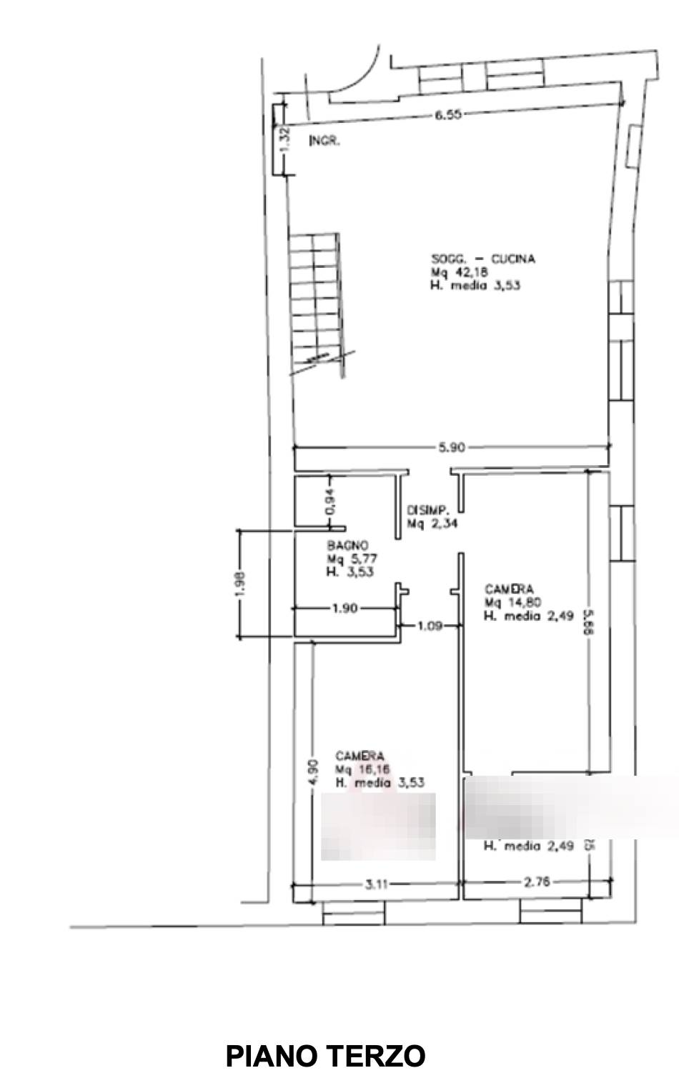
Appartamento al piano terzo con soppalco al piano sottotetto e cantina al piano interrato in palazzo storico su quattro piani fuori terra ed uno interrato, denominato “Palazzo Thiene” situato a Vicenza (VI) in Galleria del Pozzo Rosso.
L’accesso avviene da vano scala comune a cui si giunge dall’ingresso posto all’interno della galleria commerciale denominata “Galleria del Pozzo Rosso”, la grande scalinata del vano scala è dotata di ascensore che collega tutti i piani del palazzo. L’unità abitativa risulta articolata al piano terzo da un ingresso, soggiorno ed angolo cottura in un unico grande vano, disimpegno, bagno cieco e due camere da letto di cui una con bagno interno, oltre scala di accesso al soppalco; al piano sottotetto da soppalco, bagno e locale tecnico con centrale termica. La cantina è costituita da un unico vano di forma trapezoidale.

Stato di occupazione: Immobile libero.


22REB è a disposizione per valutare come la nostra esperienza potrà favorirti nel realizzare il tuo miglior investimento.


L'immobile è oggetto di vendita giudiziaria.

22REB non si occupa di attività di intermediazione imm. di cui alla legge 39/89.
 Per motivi di privacy la foto dell'immobile/terreno è indicativa ma non esaustiva.
Caratteristiche principali
Codice
GM3753/25
Città
Vicenza
Categoria
Appartamento
Prezzo
149.700 €
Locali
6
Camere
2
Bagni
3
Mq
131,51
Piano
3
Classe energetica
In fase di valutazione
Mappa
Galleria del Pozzo Rosso , Vicenza (VI)
Condividi su
Cookie preference