Italiano
English
Español
العربية
102.675 €

Appartamento a Vicenza (VI)

Appartamento in vendita • Vicenza - Galleria del Pozzo Rosso
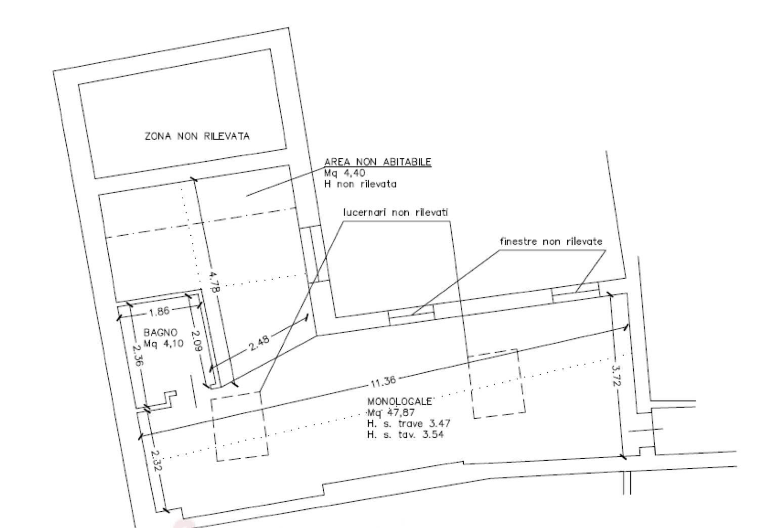
Appartamento al piano terzo con annesso posto auto coperto in palazzo storico su quattro piani fuori terra ed uno interrato, denominato “Palazzo Thiene” situato a Vicenza (VI) in Galleria del Pozzo Rosso. L’accesso all’appartamento avviene da vano scala comune a cui si giunge dall’ingresso posto all’interno della galleria commerciale denominata “Galleria del Pozzo Rosso”, la grande scalinata del vano scala è dotata di ascensore che collega tutti i piani del palazzo. L’abitazione risulta articolata da un ingresso, soggiorno ed angolo cottura in un unico vano e bagno cieco.


22REB è a disposizione per valutare come la nostra esperienza potrà favorirti nel realizzare il tuo miglior investimento.


L'immobile è oggetto di vendita giudiziaria.

22REB non si occupa di attività di intermediazione imm. di cui alla legge 39/89.
 Per motivi di privacy la foto dell'immobile/terreno è indicativa ma non esaustiva.
Caratteristiche principali
Codice
GM3754/25
Città
Vicenza
Categoria
Appartamento
Prezzo
102.675 €
Locali
2
Camere
1
Bagni
1
Mq
64,37
Posti auto
1
Piano
3
Classe energetica
In fase di valutazione
Mappa
Galleria del Pozzo Rosso , Vicenza (VI)
Condividi su
Cookie preference