Italiano
English
Español
العربية
94.500 €

Porzione di casa a Fossalta di Piave (VE)

Porzione di Casa in vendita • Fossalta di Piave - Via Roma
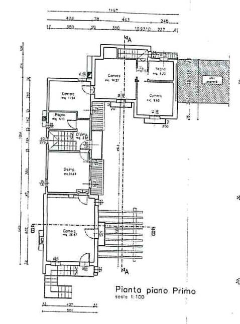
Porzione di fabbricato residenziale su due livelli con pertinenziale scoperto esclusivo situata a Fossalta di Piave (VE) in via Roma, composta al piano terra da un ingresso, una cucina-sala da pranzo, soggiorno, servizio igienico, centrale termica, un magazzino; al primo piano da un disimpegno, bagno, disimpegno, una camera da letto oltre poggioli.


22REB è a disposizione per valutare come la nostra esperienza potrà favorirti nel realizzare il tuo miglior investimento.


L'immobile è oggetto di vendita giudiziaria.

22REB non si occupa di attività di intermediazione imm. di cui alla legge 39/89.
 Per motivi di privacy la foto dell'immobile/terreno è indicativa ma non esaustiva.
Caratteristiche principali
Codice
GM3758/25
Città
Fossalta di Piave
Categoria
Porzione di Casa
Prezzo
94.500 €
Locali
7
Camere
1
Bagni
2
Mq
159
Classe energetica
In fase di valutazione
Mappa
Via Roma , Fossalta di Piave (VE)
Condividi su
Cookie preference