Italiano
English
Español
العربية
248.500 €

Laboratorio ad Albettone (VI)

Laboratorio in vendita • Albettone - Via A. De Gasperi
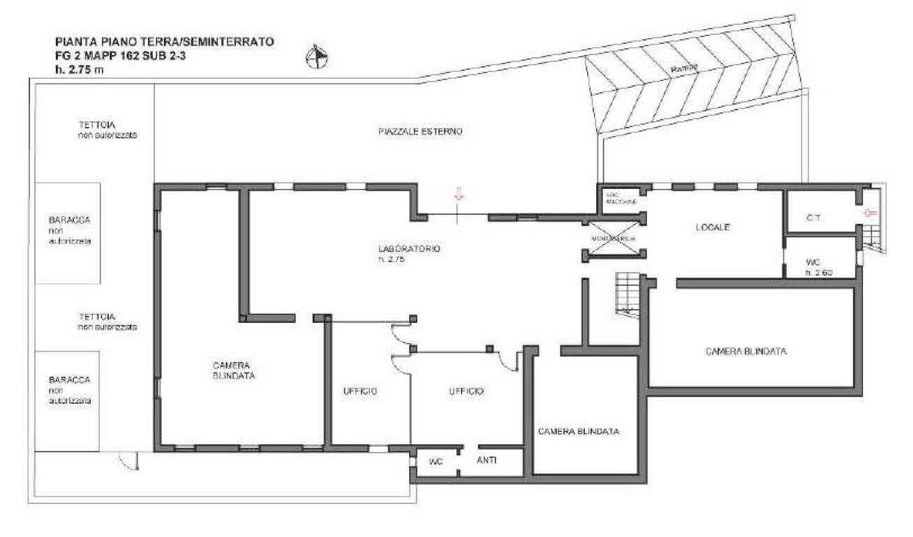
Laboratorio con uffici ad albettone (VI), località Lovolo in via A. De Gasperi, presenta una superficie commerciale di 845 mq circa con un’area scoperta di circa 1.000 mq. Il laboratorio viene utilizzato per il confezionamento di capi d’abbigliamento, in particolare pellicceria. Si sviluppa al piano rialzato da un portico, ingresso, sala mostra, uffici, servizi igienici, laboratorio per il confezionamento, locale servizi igienici e spogliatoio, montacarichi e vano scala; al piano seminterrato da centrale termica con accesso esclusivo dall’esterno, n. 3 camere blindate adibite a deposito pellicce, ciascuna dotata di porta con combinazione, n. 2 bagni di cui uno con antibagno, magazzino, laboratorio e uffici.


22REB è a disposizione per valutare come la nostra esperienza potrà favorirti nel realizzare il tuo miglior investimento.


L'immobile è oggetto di vendita giudiziaria.

22REB non si occupa di attività di intermediazione imm. di cui alla legge 39/89.
 Per motivi di privacy la foto dell'immobile/terreno è indicativa ma non esaustiva.
Caratteristiche principali
Codice
GM3778/25
Città
Albettone
Categoria
Laboratorio
Prezzo
248.500 €
Locali
1
Mq
845
Classe energetica
In fase di valutazione
Mappa
Via A. De Gasperi , Albettone (VI)
Condividi su
Cookie preference