Italiano
English
Español
العربية
165.225 €

Complesso immobiliare a Montecchio Maggiore (VI)

Casa singola in vendita • Montecchio Maggiore - Via Covolo Alto
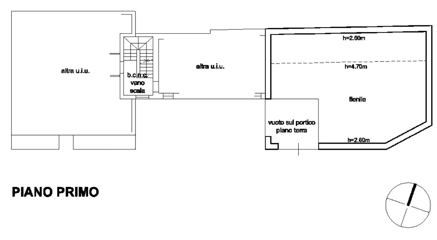
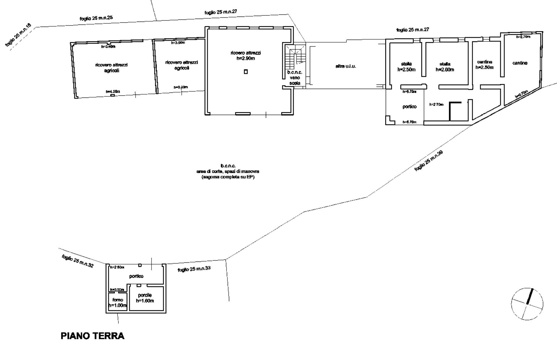
Casa singola con accessori agricoli ed area di corte oltre terreni agricoli di 8.959 metri quadri situato a Montecchio Maggiore (VI) in via Covolo, l’immobile residenziale si sviluppa su tre piani fuori terra ed è suddiviso in due unità abitative. Il primo appartamento composto al piano terra da un ingresso-soggiorno, una cucina e scala di accesso al piano primo e, in quest’ultimo, da una camera doppia, bagno finestrato, scala di accesso alla soffitta e da un’altra camera doppia. Secondo appartamento al piano primo, a sinistra rispetto al vano scala, risulta composto da ingresso, soggiorno ed angolo cottura in un unico locale, due terrazzi, bagno, camera doppia con terrazzo, camera singola e ripostiglio; al piano secondo si trova una soffitta con tetto in andamento. Magazzino agricolo composto al piano terra da tre ricoveri attrezzi agricoli; al piano secondo da una soffitta; a destra rispetto all’immobile residenziale sopra descritto, al piano terra portico, stalle e cantine; al piano primo da un fienile; sul lato opposto rispetto ai fabbricati sopra descritti, un fabbricato con al piano terra, porcile e forno entrambi in disuso e al piano primo magazzino e legnaia.
I terreni agricoli accessibili da via Covolo Alto risultano coltivati, di forma irregolare e di varie dimensioni.


22REB è a disposizione per valutare come la nostra esperienza potrà favorirti nel realizzare il tuo miglior investimento.


L'immobile è oggetto di vendita giudiziaria.

22REB non si occupa di attività di intermediazione imm. di cui alla legge 39/89.
 Per motivi di privacy la foto dell'immobile/terreno è indicativa ma non esaustiva.
Caratteristiche principali
Codice
GM3789/25
Città
Montecchio Maggiore
Categoria
Casa singola
Prezzo
165.225 €
Locali
9,5
Mq
842
Classe energetica
In fase di valutazione
Mappa
Via Covolo Alto , Montecchio Maggiore (VI)
Condividi su
Cookie preference