Italiano
English
Español
العربية
285.750 €

Capannone a Veggiano (PD)

Capannone in vendita • Veggiano - Via Alessandro Volta
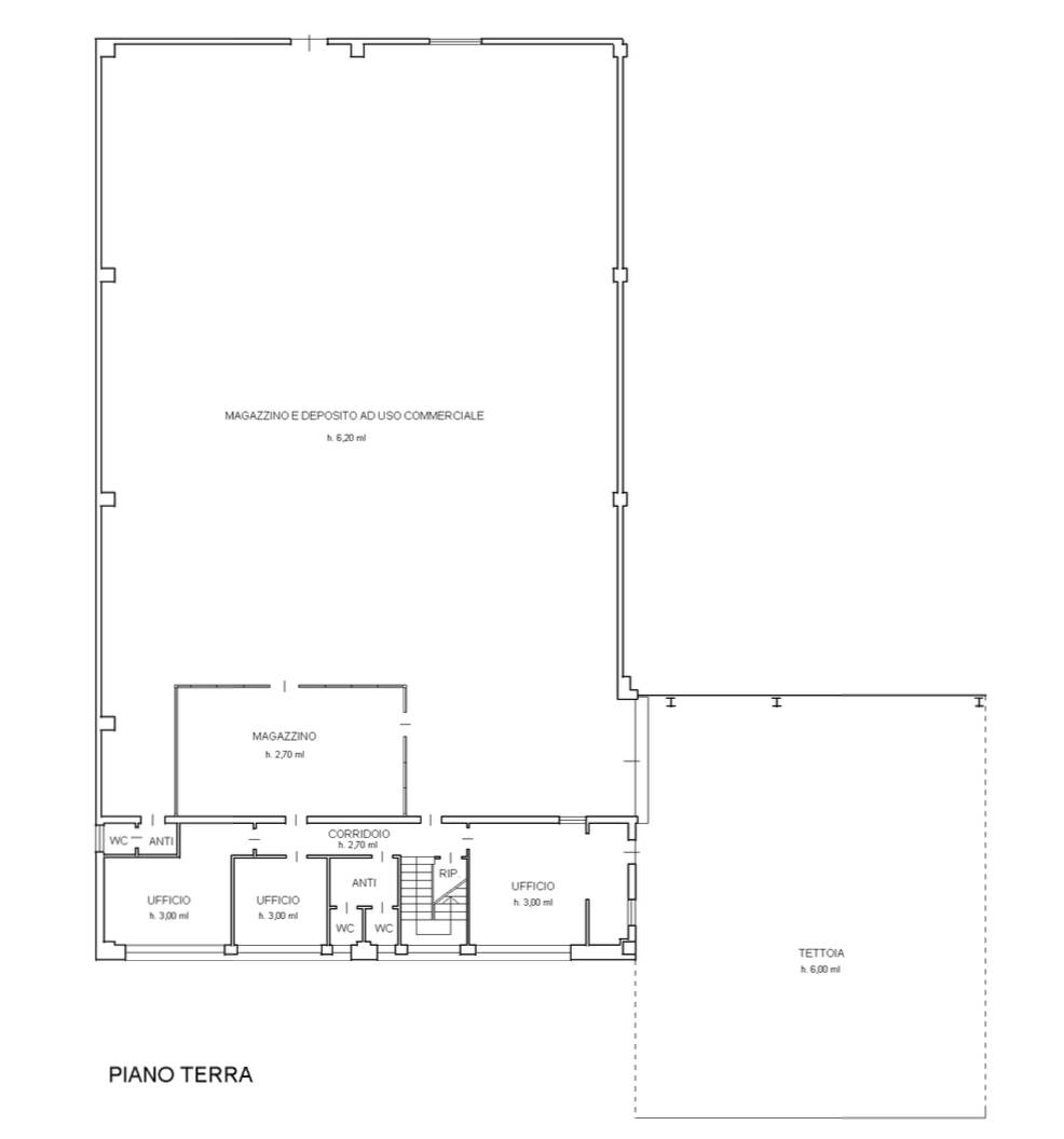
Magazzino-deposito ad uso commerciale situato in via Alessandro Volta in Comune di Veggiano (PD), costituito da un ambiente principale di circa 590 mq lordi con altezza di circa 6,2 m, destinato a magazzino e deposito ad uso commerciale; dai locali fronte strada sviluppati su due piani fuori terra di circa 110 mq lordi ciascuno (altezza interna circa 3,0 m), destinati ad uso ufficio e servizi igienici; da un’area scoperta di circa 1.078 mq destinata a parcheggi, area di manovra e tettoia.

Stato di occupazione: Immobile occupato con contratto di locazione con decorrenza dal 20.04.2021 per la durata di 6+6 anni, con prima scadenza fissata per il 19.04.2027, per un canone annuo stabilito in € 19.344,00.


22REB è a disposizione per valutare come la nostra esperienza potrà favorirti nel realizzare il tuo miglior investimento.


L'immobile è oggetto di vendita giudiziaria.

22REB non si occupa di attività di intermediazione imm. di cui alla legge 39/89.
 Per motivi di privacy la foto dell'immobile/terreno è indicativa ma non esaustiva.
Caratteristiche principali
Codice
GM3810/25
Città
Veggiano
Categoria
Capannone
Prezzo
285.750 €
Locali
1
Mq
700
Classe energetica
In fase di valutazione
Mappa
Via Alessandro Volta , Veggiano (PD)
Condividi su
Cookie preference