Italiano
English
Español
العربية
1.161.600 €

Complesso immobiliare produttivo vitivinicolo a Gorgo al Monticano (TV)

Azienda Agricola in vendita • Gorgo al Monticano - Via Malintrada
Complesso di fabbricati e terreni ad uso produttivo vitivinicolo ed abitativo situato a Gorgo al Monticano (TV) in via Malintrada, formato da:
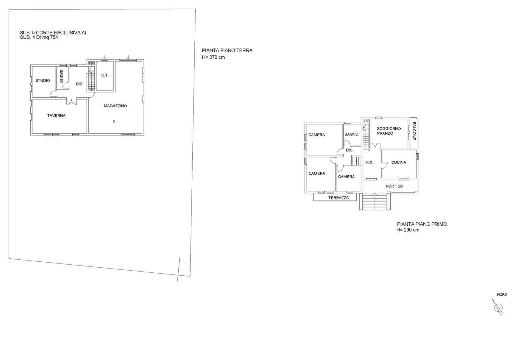
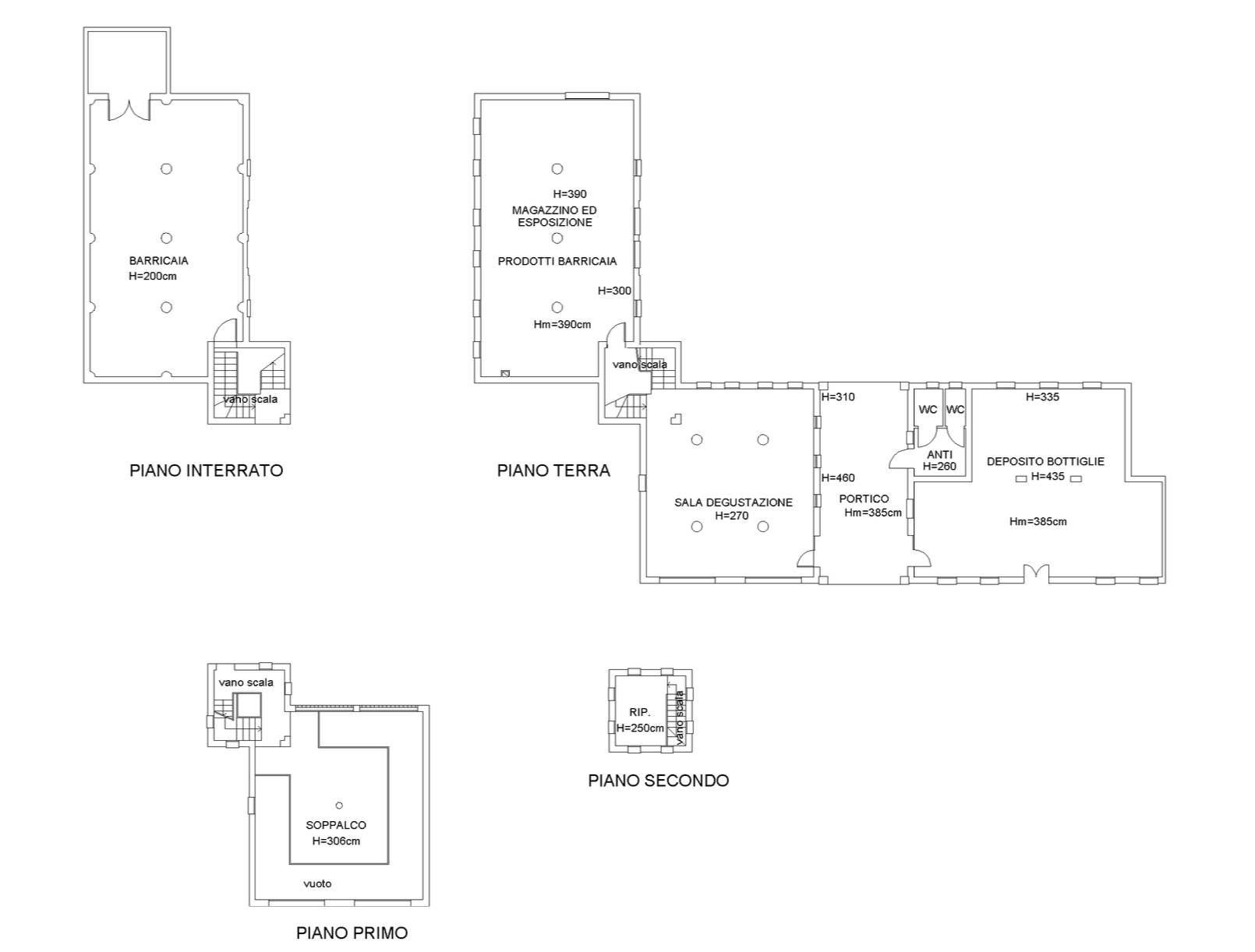
a) Fabbricato con funzioni plurime composto da barricaia, sala degustazione, magazzino, sala degustazione, sala esposizione, deposito, portico e alloggio del custode;
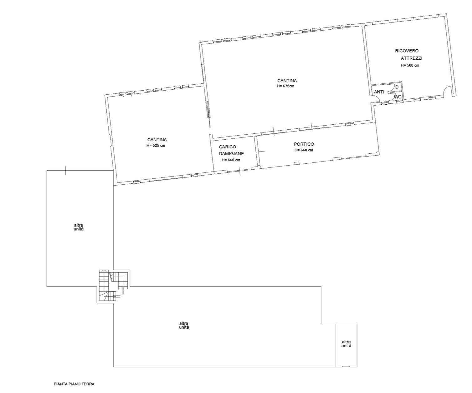
b) Una cantina di vinificazione con portico e ricovero attrezzi;
c) Un'area di pertinenza all'attività vitivinicola;
d) Un fabbricato ad uso abitazione unifamiliare con area di pertinenza;
e) Un terreno a prato, a confine con l'abitazione;
f) Terreni coltivati a vigneto per complessivi 45.630 mq;
g) Terreni coltivati a seminativo per complessivi 22.636.


22REB è a disposizione per valutare come la nostra esperienza potrà favorirti nel realizzare il tuo miglior investimento.


L'immobile è oggetto di vendita giudiziaria.

22REB non si occupa di attività di intermediazione imm. di cui alla legge 39/89.
 Per motivi di privacy la foto dell'immobile/terreno è indicativa ma non esaustiva.
Caratteristiche principali
Codice
GM3833/25
Città
Gorgo al Monticano
Categoria
Azienda Agricola
Prezzo
1.161.600 €
Locali
15,5
Mq
4062
Classe energetica
In fase di valutazione

Accessori: Ascensore

Mappa
Via Malintrada , Gorgo al Monticano (TV)
Condividi su
Cookie preference