Italiano
English
Español
العربية
292.500 €

Villetta a schiera a Trissino (VI)

Villetta schiera in vendita • Trissino - Via Masieri
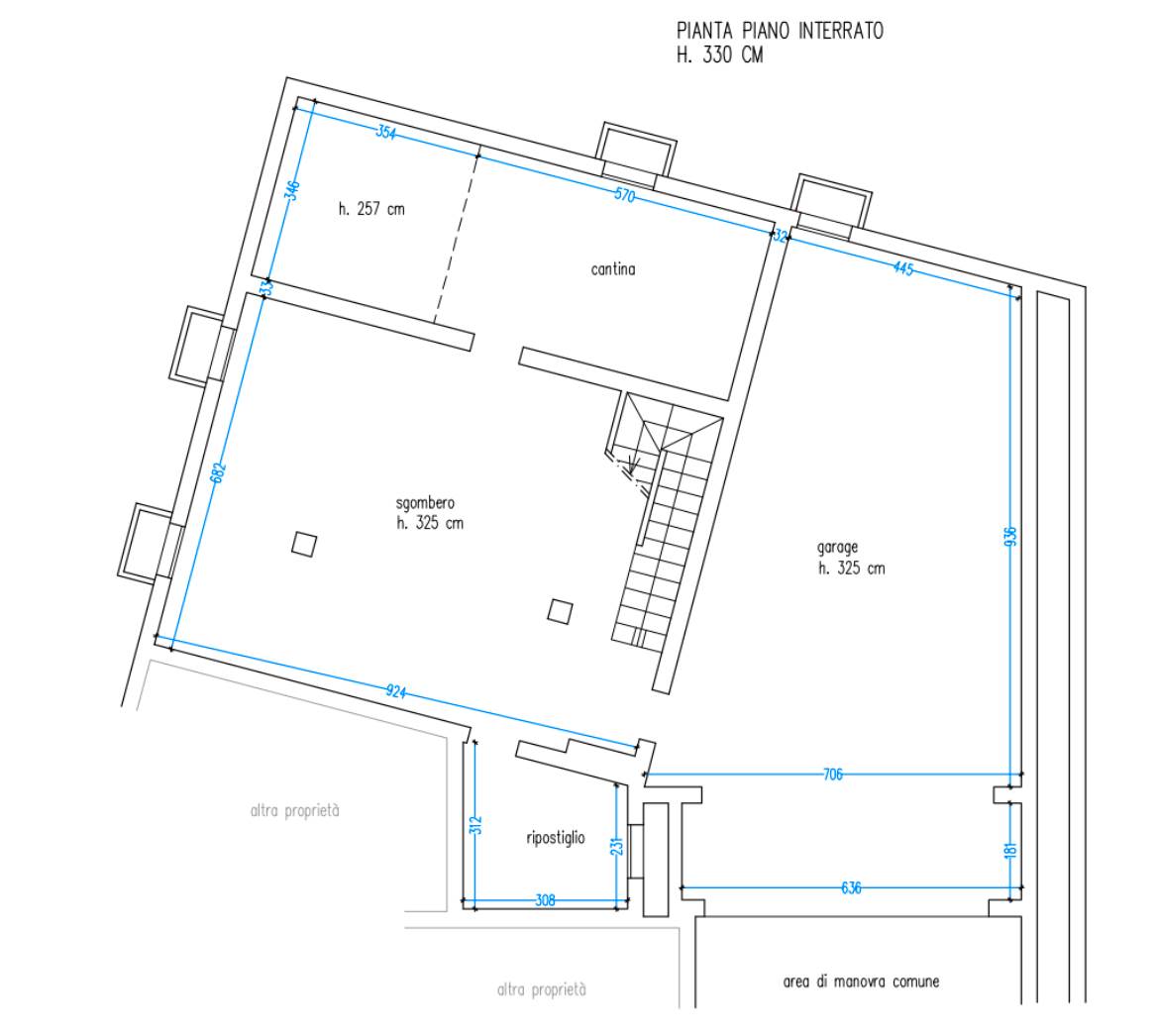
Porzione di testa di villetta a schiera ai piani interrato, terra e primo con unità in corso di costruzione al piano interrato (autorimessa), piscina e scoperto di pertinenza situata in via Masieri nel Comune di Trissino (VI). L’abitazione è composta al piano interrato da locali sgombero, ripostiglio e cantina; al piano terra da un ingresso, una cucina, soggiorno, anti-bagno, bagno, un portico a sud-est di circa mq 32 ed uno scoperto di pertinenza di complessivi circa mq 1.761; al piano primo da tre camere, due bagni, cabina armadio ed un un poggiolo sul lato sud-est per circa mq 11. L’autorimessa sita al piano interrato, attualmente in corso di costruzione, adiacente e comunicante con l’abitazione, presenta forma trapezoidale irregolare e sviluppa una superficie commerciale di circa mq 79 con accesso carraio dai beni comuni.


22REB è a disposizione per valutare come la nostra esperienza potrà favorirti nel realizzare il tuo miglior investimento.


L'immobile è oggetto di vendita giudiziaria.

22REB non si occupa di attività di intermediazione imm. di cui alla legge 39/89.
 Per motivi di privacy la foto dell'immobile/terreno è indicativa ma non esaustiva.
Caratteristiche principali
Codice
GM3850/25
Città
Trissino
Categoria
Villetta schiera
Prezzo
292.500 €
Locali
11
Camere
3
Bagni
3
Mq
266
Box
1
Mq Box
79
Classe energetica
In fase di valutazione

Accessori: Ascensore

Mappa
Via Masieri , Trissino (VI)
Condividi su
Cookie preference