Italiano
English
Español
العربية
39.000 €

Appartamento a Zero Branco (TV)

Appartamento in vendita • Zero Branco - Via G. Mazzini
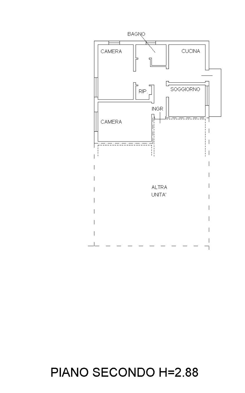
Appartamento al piano secondo con annessa autorimessa al piano terra facente parte di un condominio a quattro piani fuori terra situato a Zero Branco (TV) in via G. Mazzini, composto da un ingresso, un soggiorno-cucina, un bagno, due camere da letto ed un ripostiglio.


22REB è a disposizione per valutare come la nostra esperienza potrà favorirti nel realizzare il tuo miglior investimento.


L'immobile è oggetto di vendita giudiziaria.

22REB non si occupa di attività di intermediazione imm. di cui alla legge 39/89.
 Per motivi di privacy la foto dell'immobile/terreno è indicativa ma non esaustiva.
Caratteristiche principali
Codice
GM3871/25
Città
Zero Branco
Categoria
Appartamento
Prezzo
39.000 €
Locali
5
Camere
2
Bagni
1
Mq
71
Box
1
Mq Box
14
Piano
2
Classe energetica
In fase di valutazione

Accessori: Ascensore

Mappa
Via G. Mazzini , Zero Branco (TV)
Condividi su
Cookie preference