Italiano
English
Español
العربية
199.500 €

Porzione di casa a Villorba (TV)

Porzione di Casa in vendita • Villorba (Castrette) - Via Guizze
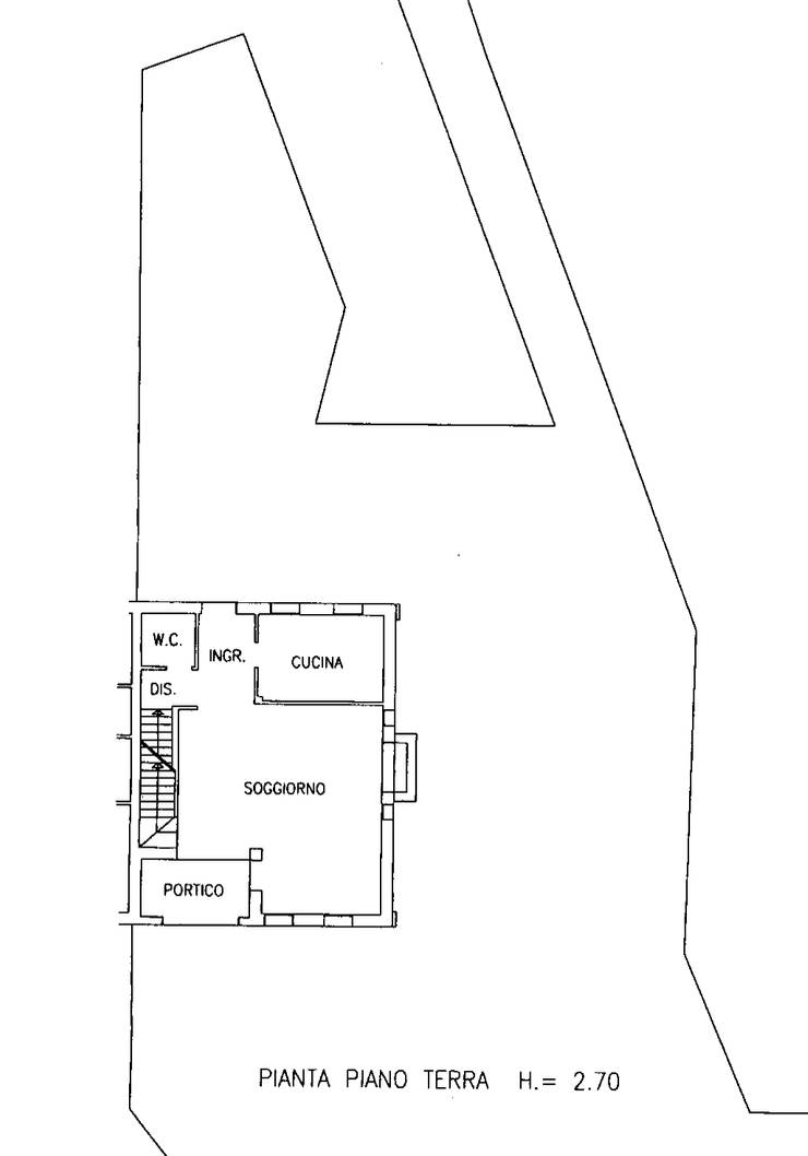
Porzione di testa, divisa terra-cielo, di un antico fabbricato ristrutturato, e facente parte di una recente lottizzazione situata a Villorba (TV), località Castrette in via Guizze. Trattasi di un edificio di antica fattura completamente ristrutturato, a due piani fuori terra adibiti ad abitazione più un semipiano sottotetto ed un piano sotto strada seminterrato adibito a locali accessori.
L'unità è composta al piano terra da un ingresso, una cucina, un soggiorno-sala da pranzo ed un servizio igienico; al piano primo è composta da un disimpegno, due bagni e due camere da letto.


22REB è a disposizione per valutare come la nostra esperienza potrà favorirti nel realizzare il tuo miglior investimento.


L'immobile è oggetto di vendita giudiziaria.

22REB non si occupa di attività di intermediazione imm. di cui alla legge 39/89.
 Per motivi di privacy la foto dell'immobile/terreno è indicativa ma non esaustiva.
Caratteristiche principali
Codice
GM3872/25
Città
Villorba (Castrette)
Categoria
Porzione di Casa
Prezzo
199.500 €
Locali
7,5
Camere
2
Bagni
3
Mq
239
Box
1
Mq Box
41
Classe energetica
In fase di valutazione

Accessori: Ascensore

Mappa
Via Guizze , Villorba (TV)
Condividi su
Cookie preference