Italiano
English
Español
العربية
51.230 €

Appartamento a Portogruaro (VE)

Appartamento in vendita • Portogruaro - Via Lugugnana
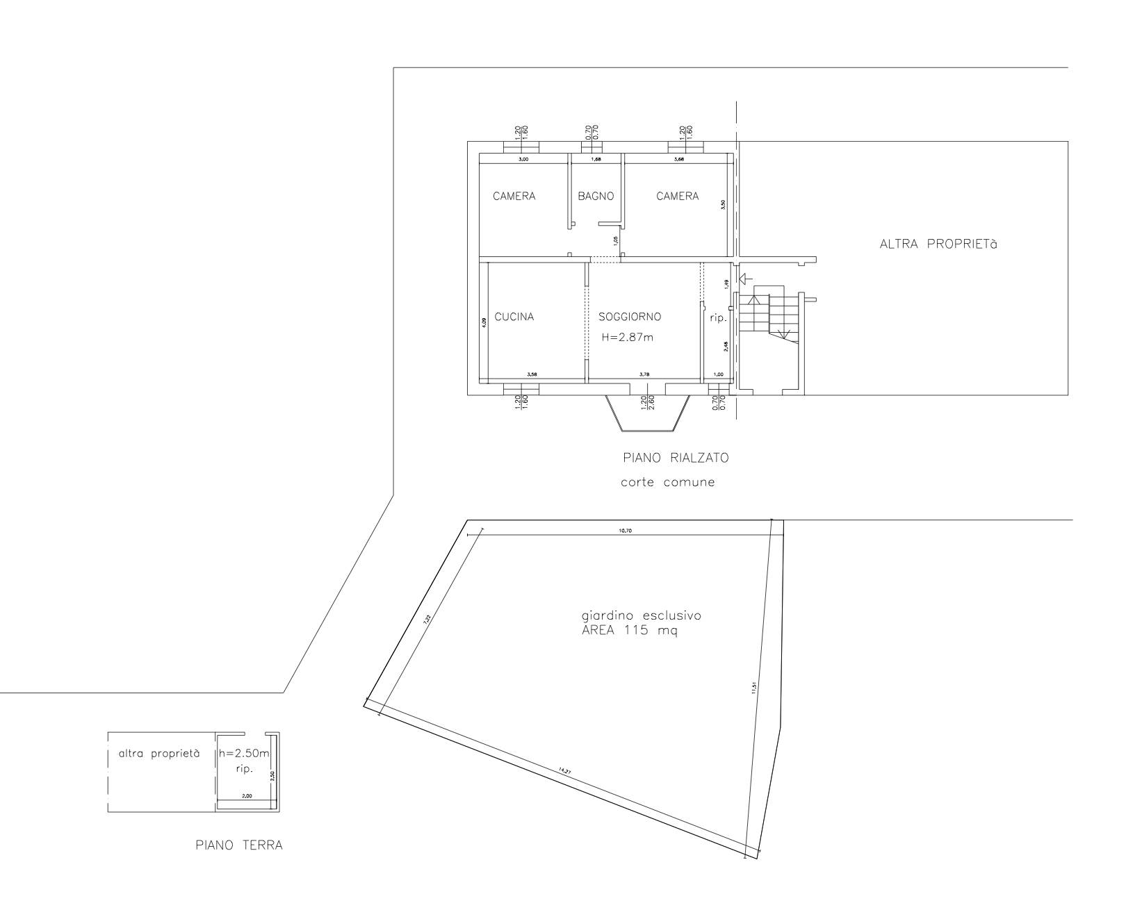
Appartamento al piano rialzato con porzione di giardino ad uso esclusivo e ripostiglio esterno situato a Portogruaro (VE) in via Lugugnana, costituito da un ingresso, ripostiglio, un soggiorno, una cucina, due camere da letto ed un bagno; al piano secondo con ingresso centrale vi è una soffitta che si sviluppa sulla metà a destra del fabbricato ad uso ripostiglio.

Stato di occupazione: Immobile libero.


22REB è a disposizione per valutare come la nostra esperienza potrà favorirti nel realizzare il tuo miglior investimento.


L'immobile è oggetto di vendita giudiziaria.

22REB non si occupa di attività di intermediazione imm. di cui alla legge 39/89.
 Per motivi di privacy la foto dell'immobile/terreno è indicativa ma non esaustiva.
Caratteristiche principali
Codice
GM3899/25
Città
Portogruaro
Categoria
Appartamento
Prezzo
51.230 €
Locali
6,5
Camere
2
Bagni
1
Mq
87
Piano
Rialzato
Classe energetica
In fase di valutazione

Accessori: Ascensore

Mappa
Via Lugugnana , Portogruaro (VE)
Condividi su
Cookie preference