Italiano
English
Español
العربية
195.450 €

Villa bifamiliare ad Abano Terme (PD)

Villa Bifamiliare in vendita • Abano Terme - Via G. Cardano
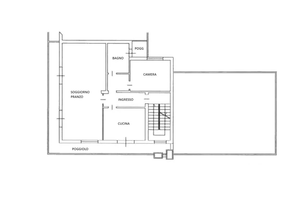
Porzione di bifamiliare su tre livelli con garage e scoperto esclusivo situata in Abano Terme (PD) in via Cardano, composta al piano terra da un ingresso, vano scala, ripostiglio, centrale termica e servizio igienico; al primo piano da un ingresso, disimpegno, un soggiorno-sala da pranzo, una cucina, un bagno, camera, due poggioli ed una terrazza di circa 71 mq; al piano sottotetto da tre locali soffitta non abitabili, bagno, disimpegno e tre poggioli.


22REB è a disposizione per valutare come la nostra esperienza potrà favorirti nel realizzare il tuo miglior investimento.


L'immobile è oggetto di vendita giudiziaria.

22REB non si occupa di attività di intermediazione imm. di cui alla legge 39/89.
 Per motivi di privacy la foto dell'immobile/terreno è indicativa ma non esaustiva.
Caratteristiche principali
Codice
GM3909/25
Città
Abano Terme
Categoria
Villa Bifamiliare
Prezzo
195.450 €
Locali
4
Camere
2
Bagni
3
Mq
198
Classe energetica
In fase di valutazione

Accessori: Ascensore

Mappa
Via G. Cardano , Abano Terme (PD)
Condividi su
Cookie preference