Italiano
English
Español
العربية
430.000 €

Porzione di capannone a Bagnoli di Sopra (PD)

Capannone in vendita • Bagnoli di Sopra - Viale dell'Industria
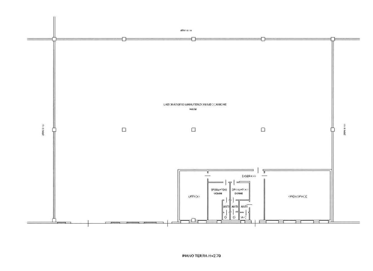
Porzione di capannone artigianale con terreno pertinenziale comune situata a Bagnoli di Sopra (PD) in viale dell'Industria, comprende un laboratorio con annessi openspace, ufficio, spogliatoi e servizi al piano terra per una superficie commerciale complessiva di 1.060 metri quadri.


22REB è a disposizione per valutare come la nostra esperienza potrà favorirti nel realizzare il tuo miglior investimento.


L'immobile è oggetto di vendita giudiziaria.

22REB non si occupa di attività di intermediazione imm. di cui alla legge 39/89.
 Per motivi di privacy la foto dell'immobile/terreno è indicativa ma non esaustiva.
Caratteristiche principali
Codice
GM3915/25
Città
Bagnoli di Sopra
Categoria
Capannone
Prezzo
430.000 €
Locali
1
Mq
1060
Classe energetica
In fase di valutazione

Accessori: Ascensore

Mappa
Viale dell'Industria , Bagnoli di Sopra (PD)
Condividi su
Cookie preference