Italiano
English
Español
العربية
94.350 €

Appartamento a Sossano (VI)

Appartamento in vendita • Sossano - Via Domenico Thiene
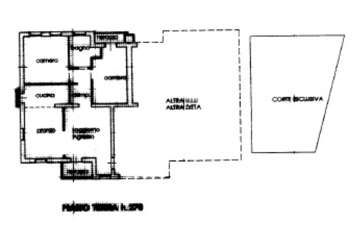
Appartamento al piano terra con corte esclusiva, oltre due locali accessori e garage al piano interrato facente parte di condominio situato a Sossano (VI) in via Domenico, composta da soggiorno-zona pranzo, una cucina, disimpegno, due camere da letto, un bagno e due poggioli.

Stato di occupazione: Contratto di locazione in essere del tipo 4+4 anni, stipulato in data 20.03.2017 (con decorrenza dal 01.04.2017), registrato il 30.03.2017 e rinnovato fino al 31.03.2029.


22REB è a disposizione per valutare come la nostra esperienza potrà favorirti nel realizzare il tuo miglior investimento.


L'immobile è oggetto di vendita giudiziaria.

22REB non si occupa di attività di intermediazione imm. di cui alla legge 39/89.
 Per motivi di privacy la foto dell'immobile/terreno è indicativa ma non esaustiva.
Caratteristiche principali
Codice
GM3937/25
Città
Sossano
Categoria
Appartamento
Prezzo
94.350 €
Locali
5
Camere
2
Bagni
1
Mq
108
Box
1
Mq Box
62
Classe energetica
In fase di valutazione

Accessori: Ascensore

Mappa
Via Domenico Thiene , Sossano (VI)
Condividi su
Cookie preference