Italiano
English
Español
العربية
126.750 €

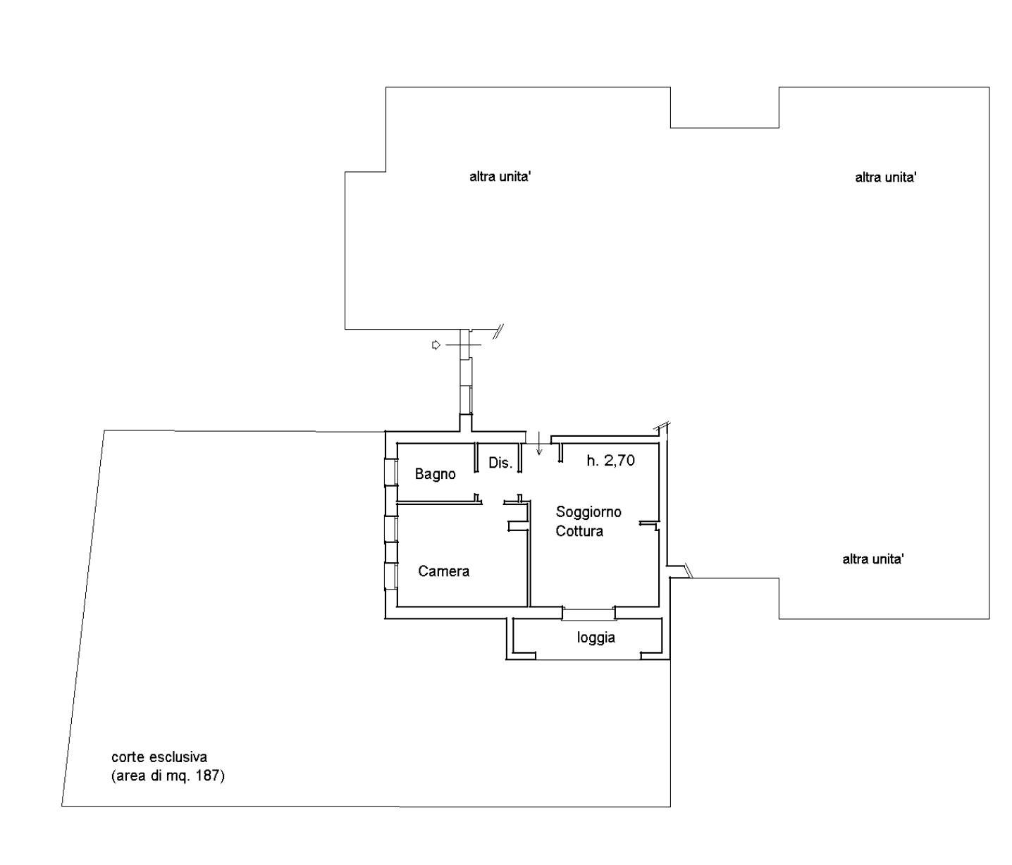
Appartamento a Roncade (TV)

Appartamento in vendita • Roncade - Via IV Novembre
Appartamento con garage e giardino esclusivo situato a Vallio di Roncade (TV) in via IV Novembre, composto da un ingresso-loggia, soggiorno con zona cottura, una camera da letto, un bagno ed un disimpegno.

Stato di occupazione: Contratto di locazione in essere con scadenza il 14.02.26 con proroga di ulteriore due anni.


22REB è a disposizione per valutare come la nostra esperienza potrà favorirti nel realizzare il tuo miglior investimento.


L'immobile è oggetto di vendita giudiziaria.

22REB non si occupa di attività di intermediazione imm. di cui alla legge 39/89.
 Per motivi di privacy la foto dell'immobile/terreno è indicativa ma non esaustiva.
Caratteristiche principali
Codice
GM4001/26
Città
Roncade
Categoria
Appartamento
Prezzo
126.750 €
Locali
3
Camere
1
Bagni
1
Mq
59
Box
1
Mq Box
17
Classe energetica
In fase di valutazione

Accessori: Ascensore

Mappa
Via IV Novembre , Roncade (TV)
Condividi su
Cookie preference