Italiano
English
Español
العربية
129.375 €

Compendio immobiliare a Brogliano (VI)

Casa singola in vendita • Brogliano (Quargnenta) - Via Poli
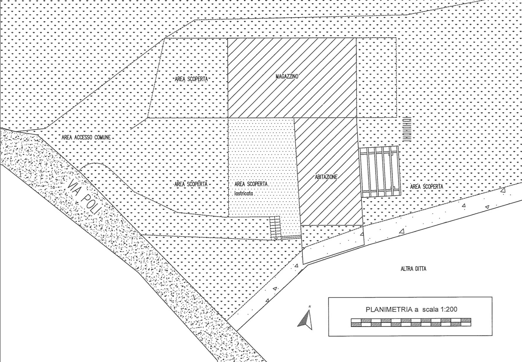
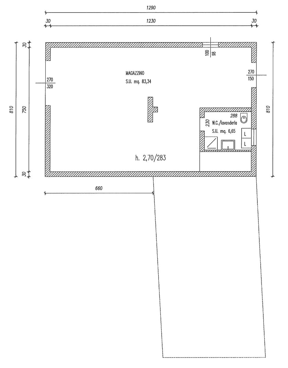
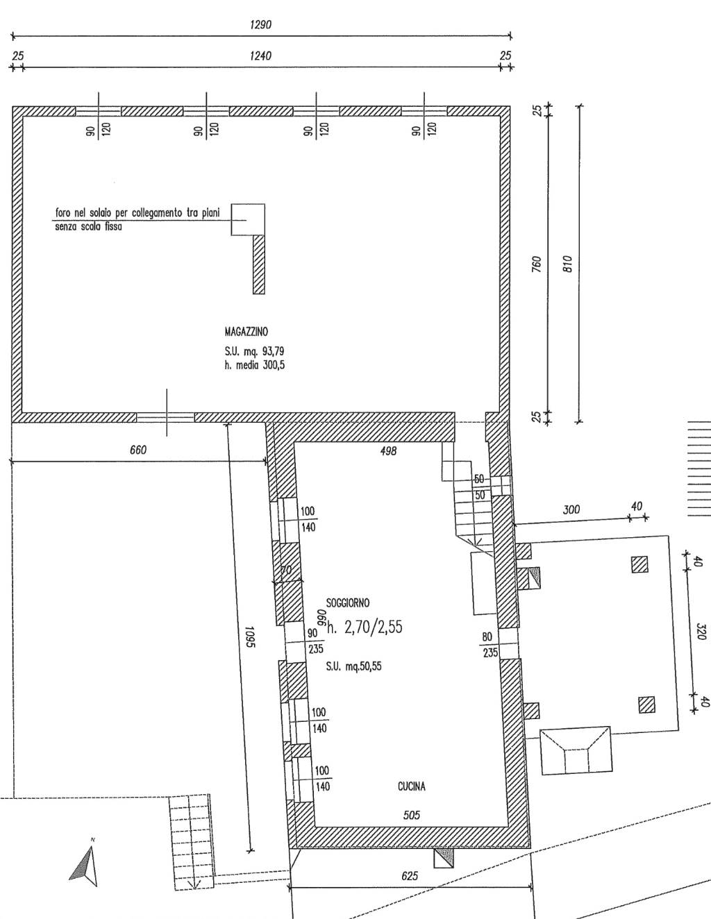
Casa singola, un magazzino ed un’area agricola adiacente situata in Brogliano (VI) in via Poli. L’edificio residenziale si sviluppa su due piani, al piano terra si trova il soggiorno in vano unico con la cucina ed affacci sul lato ovest d’ingresso e sul lato est, dove è stato realizzato un piccolo pergolato con caminetto. Al piano primo si trovano un disimpegno, il bagno e due camere ognuna con piccolo poggiolo.Il magazzino di 197 metri quadri al piano terreno è composto da un unico vano e da un servizio igienico. I terreni agricoli di 19.218 metri quadri, in terreno prevalentemente scosceso, sono raggiungibili tramite un sentiero e sono solo parzialmente coltivati come orto ed attrezzati con due precarie strutture a serra.


22REB è a disposizione per valutare come la nostra esperienza potrà favorirti nel realizzare il tuo miglior investimento.


L'immobile è oggetto di vendita giudiziaria.

22REB non si occupa di attività di intermediazione imm. di cui alla legge 39/89.
 Per motivi di privacy la foto dell'immobile/terreno è indicativa ma non esaustiva.
Caratteristiche principali
Codice
GM4006/26
Città
Brogliano (Quargnenta)
Categoria
Casa singola
Prezzo
129.375 €
Locali
5
Camere
2
Bagni
1
Mq
120
Classe energetica
In fase di valutazione

Accessori: Ascensore

Mappa
Via Poli , Brogliano (VI)
Condividi su
Cookie preference