Italiano
English
Español
العربية
51.000 €

Appartamento a Salgareda (TV)

Appartamento in vendita • Salgareda - Piazza Abate Michele Colombo
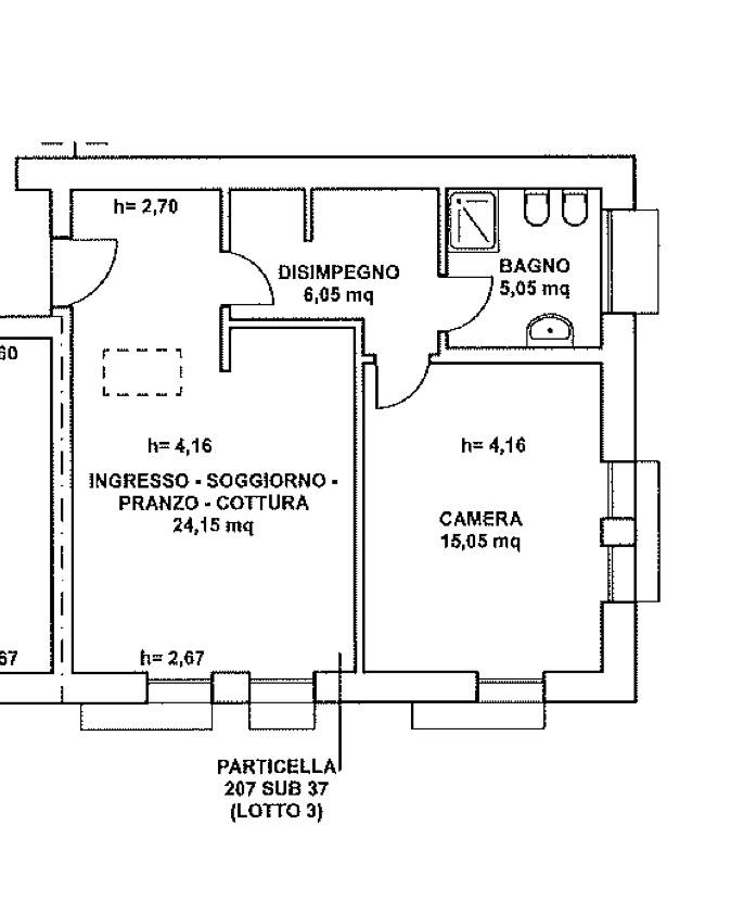
Appartamento al secondo piano situato in edificio a destinazione commerciale e residenziale sito a Salgareda (TV) in piazza Abate Michele Colombo, composto da un ingresso, soggiorno-sala da pranzo con angolo cottura, una camera da letto ed un bagno.

Stato di occupazione: Contratto di locazione in essere.


22REB è a disposizione per valutare come la nostra esperienza potrà favorirti nel realizzare il tuo miglior investimento.


L'immobile è oggetto di vendita giudiziaria.

22REB non si occupa di attività di intermediazione imm. di cui alla legge 39/89.
 Per motivi di privacy la foto dell'immobile/terreno è indicativa ma non esaustiva.
Caratteristiche principali
Codice
GM4010/26
Città
Salgareda
Categoria
Appartamento
Prezzo
51.000 €
Locali
3
Camere
1
Bagni
1
Mq
63
Piano
2
Classe energetica
In fase di valutazione

Accessori: Ascensore

Mappa
Piazza Abate Michele Colombo , Salgareda (TV)
Condividi su
Cookie preference