Italiano
English
Español
العربية
75.900 €

Porzione di casa a Trissino (VI)

Porzione di Casa in vendita • Trissino - Via Antonio Lora
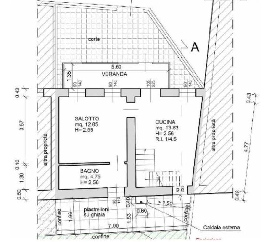
Porzione terra-cielo su due livelli con annessa autorimessa di edificio residenziale con autorimessa ed aree scoperte esclusive situata a Trissino (VI) in via Antonio Lora, composta al piano terra da una veranda verso Est, cucina verso Sud, salotto e servizio igienico a Nord; al piano primo da due camere da letto.


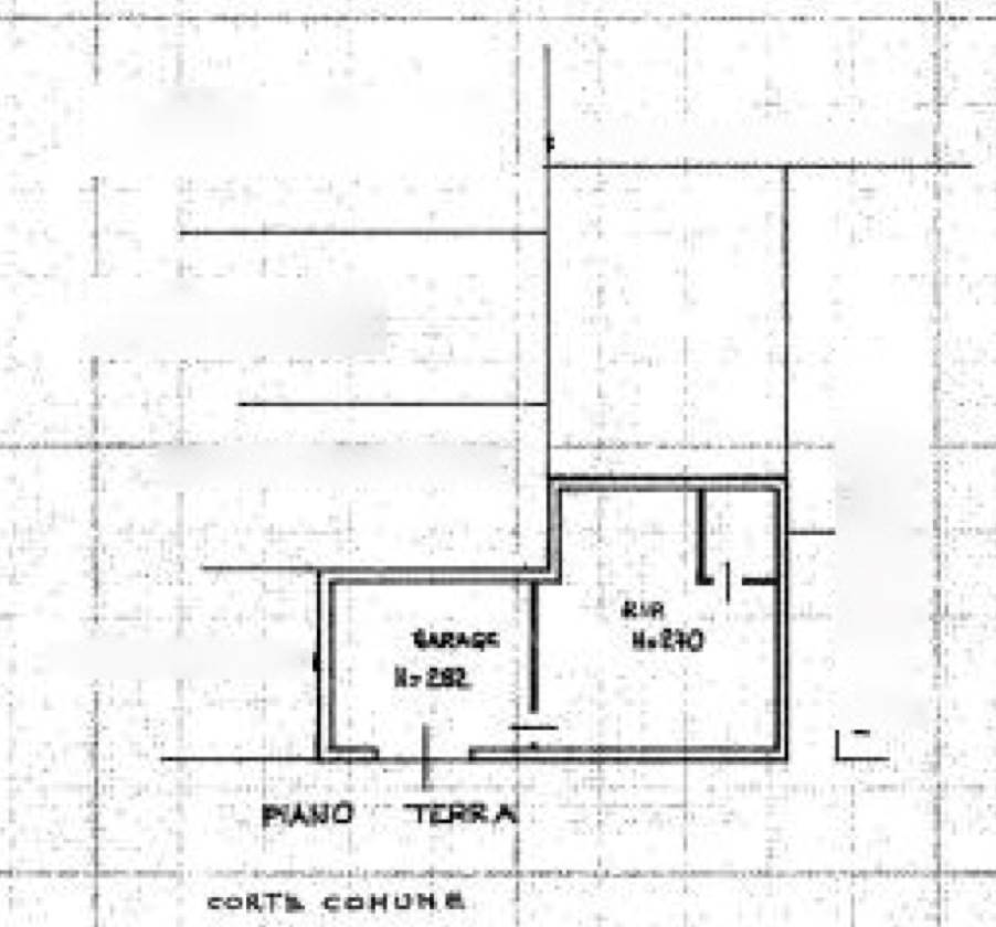
L’autorimessa, realizzata in un fabbricato indipendente rispetto alla sopra descritta abitazione e ad essa prospiciente, è composta da un vano destinato a garage e da due ripostigli di cui il maggiore utilizzato come taverna; grazie ad una scala di accesso esterna all’unità, è possibile raggiungere la copertura del fabbricato, destinata a terrazza e, da qui, una porzione di area scoperta esclusiva.L’accesso agli immobili in oggetto avviene attraverso la corte di proprietà di terzi.
22REB è a disposizione per valutare come la nostra esperienza potrà favorirti nel realizzare il tuo miglior investimento.


L'immobile è oggetto di vendita giudiziaria.

22REB non si occupa di attività di intermediazione imm. di cui alla legge 39/89.
 Per motivi di privacy la foto dell'immobile/terreno è indicativa ma non esaustiva.
Caratteristiche principali
Codice
GM4029/26
Città
Trissino
Categoria
Porzione di Casa
Prezzo
75.900 €
Locali
5
Camere
2
Bagni
1
Mq
161,09
Box
1
Mq Box
52
Classe energetica
In fase di valutazione

Accessori: Ascensore

Mappa
Via Antonio Lora , Trissino (VI)
Condividi su
Cookie preference