Italiano
English
Español
العربية
186.997 €

Compendio agricolo a Fara Vicentino (VI)

Azienda Agricola in vendita • Fara Vicentino - Via Colombare
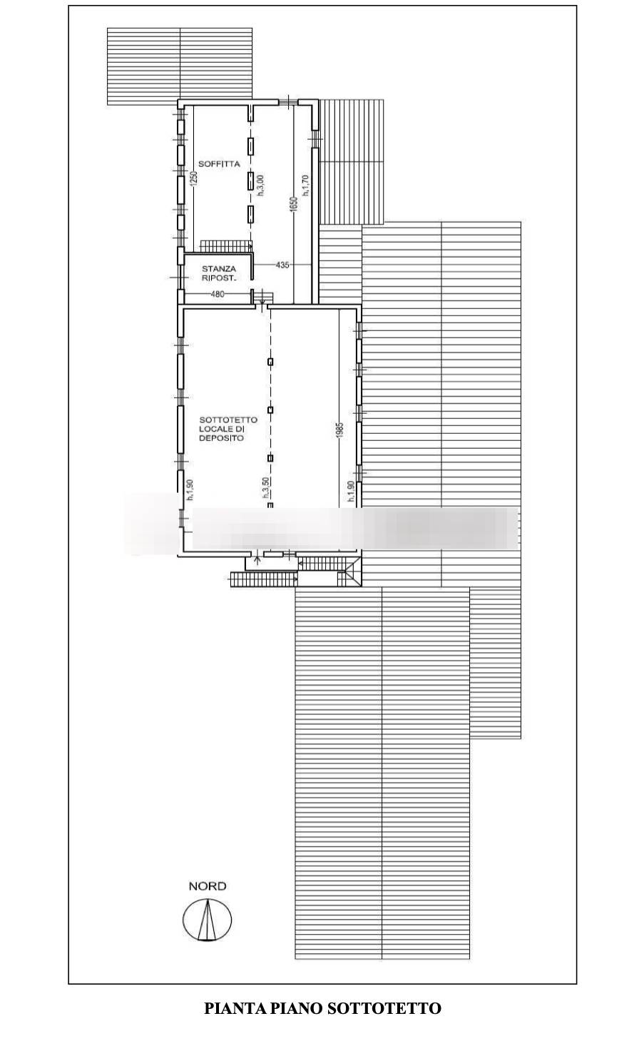
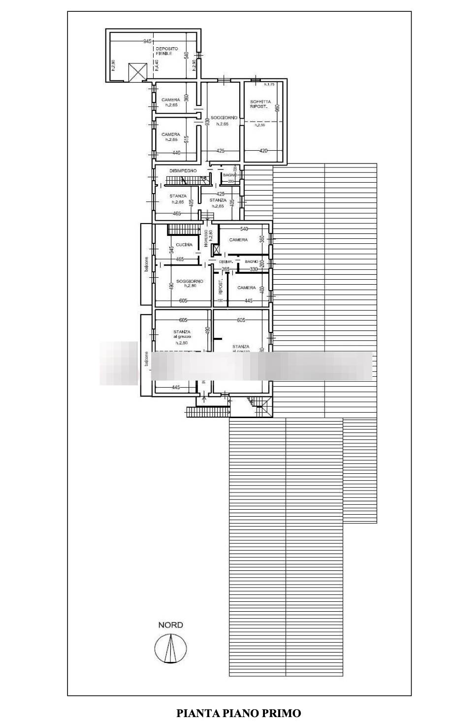
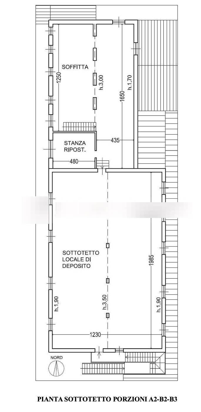
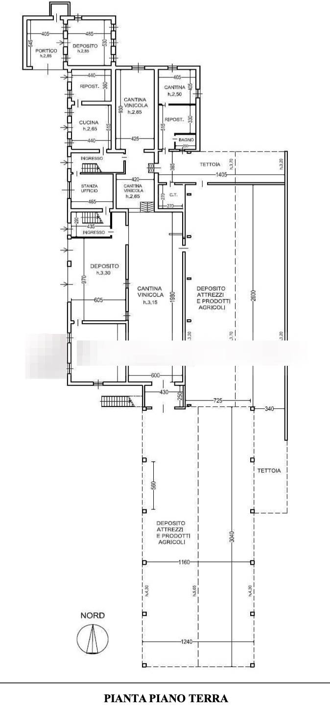
Compendio agricolo costituto da immobili per attività agricole e cantina vinicola composti da locali deposito, cantina vinicola, rimessaggio attrezzi e prodotti agricoli tettoie, annessi vari, abitazione e terreni agricoli di complessivi 40.266 metri quadri principalmente a vigneto; il tutto situato a Fara Vicentino (VI) in via Colombare.


22REB è a disposizione per valutare come la nostra esperienza potrà favorirti nel realizzare il tuo miglior investimento.


L'immobile è oggetto di vendita giudiziaria.

22REB non si occupa di attività di intermediazione imm. di cui alla legge 39/89.
 Per motivi di privacy la foto dell'immobile/terreno è indicativa ma non esaustiva.
Caratteristiche principali
Codice
GM4035/26
Città
Fara Vicentino
Categoria
Azienda Agricola
Prezzo
186.997 €
Locali
17
Mq
1833,9
Classe energetica
In fase di valutazione

Accessori: Ascensore

Mappa
Via Colombare , Fara Vicentino (VI)
Condividi su
Cookie preference