Italiano
English
Español
العربية
686.250 €

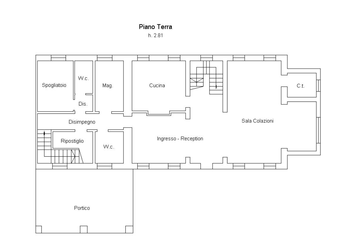
Complesso edilizio a San Stino di Livenza (VE)

Hotel in vendita • San Stino di Livenza - Via Sant'Antonio
Complesso edilizio ad uso agrituristico con ampi spazi esterni, costituito da fabbricato principale sviluppato su 2/3 piani, composto da spazi comuni al piano terra, due appartamenti al piano terra, appartamento al piano primo, camere con bagno privato al piano primo e secondo; il tutto situato a San Stino di Livenza (VE) in via Sant'Antonio. All’esterno vi è una piscina interrata di circa mq. 50, un magazzino, una cella frigo esterna con copertura e vano tecnico per piscina. Terreni agricoli complessivi di 35.130 metri quadri con una parte dell'area adibita a laghetto artificiale, una parte a giardino alberato ed una parte ad attività agricola di seminativo.


22REB è a disposizione per valutare come la nostra esperienza potrà favorirti nel realizzare il tuo miglior investimento.


L'immobile è oggetto di vendita giudiziaria.

22REB non si occupa di attività di intermediazione imm. di cui alla legge 39/89.
 Per motivi di privacy la foto dell'immobile/terreno è indicativa ma non esaustiva.
Caratteristiche principali
Codice
GM4036/26
Città
San Stino di Livenza
Categoria
Hotel
Prezzo
686.250 €
Locali
11,5
Mq
232
Classe energetica
In fase di valutazione

Accessori: Ascensore

Mappa
Via Sant'Antonio , San Stino di Livenza (VE)
Condividi su
Cookie preference