Italiano
English
Español
العربية
108.975 €

Porzione di casa a Mirano (VE)

Porzione di Casa in vendita • Mirano - Via A. Pacinotti
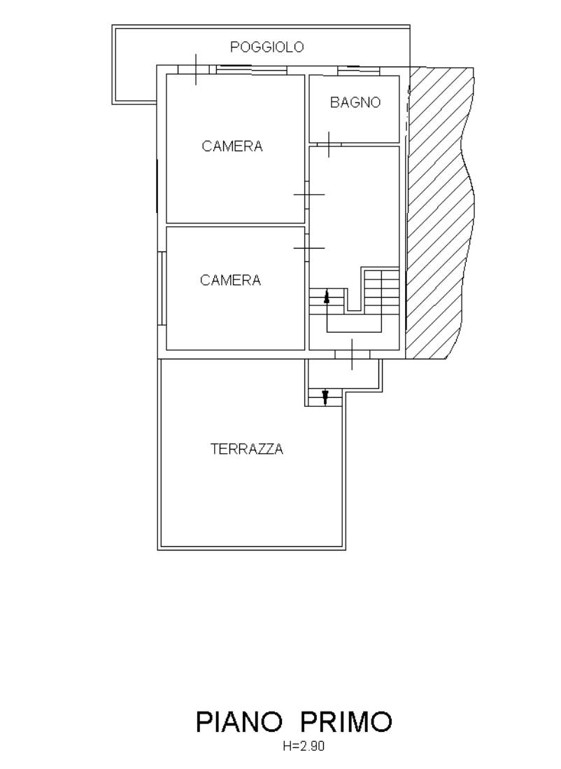
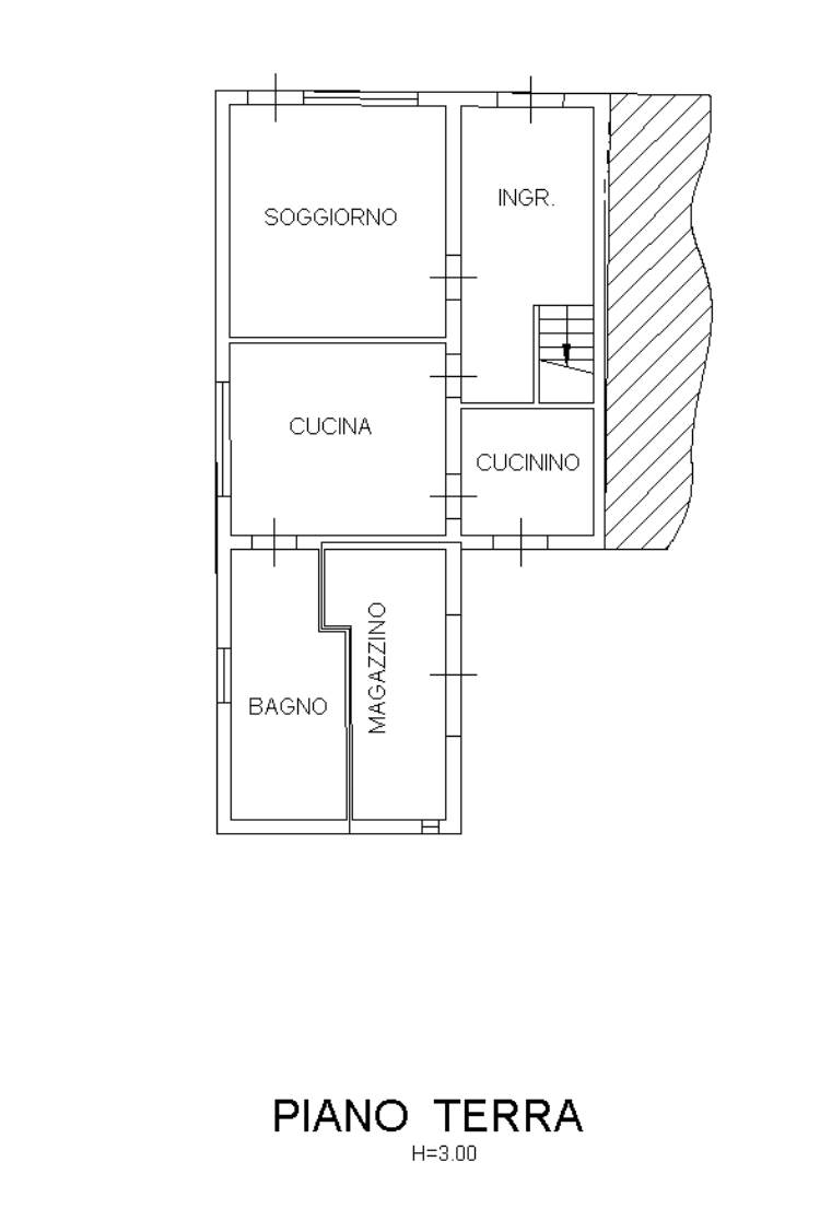
Porzione autonoma di casa su due piani con annessa autorimessa situata a Mirano (VE) in via A. Pacinotti, composta al piano terra da un ingresso, un soggiorno, una cucina, un bagno e magazzino con accesso esterno; al piano primo due camere da letto, un bagno, un poggiolo e un'ampia terrazza soleggiata.


22REB è a disposizione per valutare come la nostra esperienza potrà favorirti nel realizzare il tuo miglior investimento.


L'immobile è oggetto di vendita giudiziaria.

22REB non si occupa di attività di intermediazione imm. di cui alla legge 39/89.
 Per motivi di privacy la foto dell'immobile/terreno è indicativa ma non esaustiva.
Caratteristiche principali
Codice
GM4039/26
Città
Mirano
Categoria
Porzione di Casa
Prezzo
108.975 €
Locali
7
Camere
2
Bagni
2
Mq
138
Box
1
Mq Box
12
Classe energetica
In fase di valutazione

Accessori: Ascensore

Mappa
Via A. Pacinotti , Mirano (VE)
Condividi su
Cookie preference