Italiano
English
Español
العربية
42.750 €

Appartamento a Vittorio Veneto (TV)

Appartamento in vendita • Vittorio Veneto - Via Belfiore
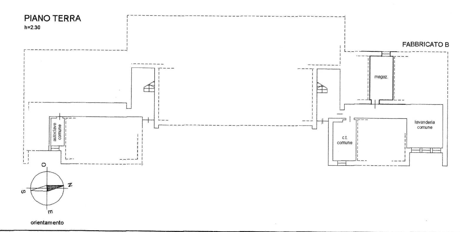
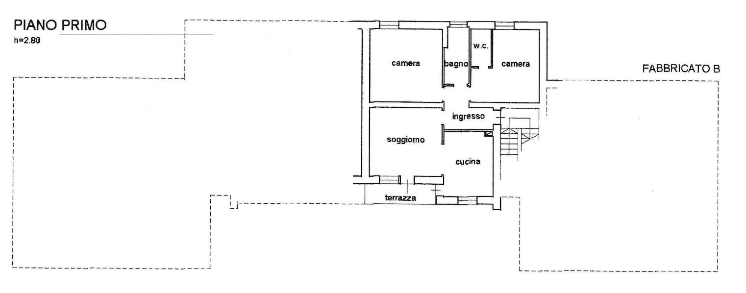
Appartamento al piano rialzato di un condominio ad uso residenziale denominato “Condominio Belfiore” situato a Vittorio Veneto (TV) in via Belfiore,
composto da entrata-disbrigo, un soggiorno, una cucina, due bagni di cui uno cieco e uno finestrato e due camere da letto. È presente una terrazza di 4,90 metri quadri ed al piano terra è ubicato un magazzino di circa 9,10 metri quadri.


22REB è a disposizione per valutare come la nostra esperienza potrà favorirti nel realizzare il tuo miglior investimento.


L'immobile è oggetto di vendita giudiziaria.

22REB non si occupa di attività di intermediazione imm. di cui alla legge 39/89.
 Per motivi di privacy la foto dell'immobile/terreno è indicativa ma non esaustiva.
Caratteristiche principali
Codice
GM4053/26
Città
Vittorio Veneto
Categoria
Appartamento
Prezzo
42.750 €
Locali
5
Camere
2
Bagni
2
Mq
73,1
Piano
Rialzato
Classe energetica
In fase di valutazione

Accessori: Ascensore

Mappa
Via Belfiore , Vittorio Veneto (TV)
Condividi su
Cookie preference