Italiano
English
Español
العربية
356.250 €

Compendio immobiliare a San Vendemiano (TV)

Ufficio in vendita • San Vendemiano - Via Italia
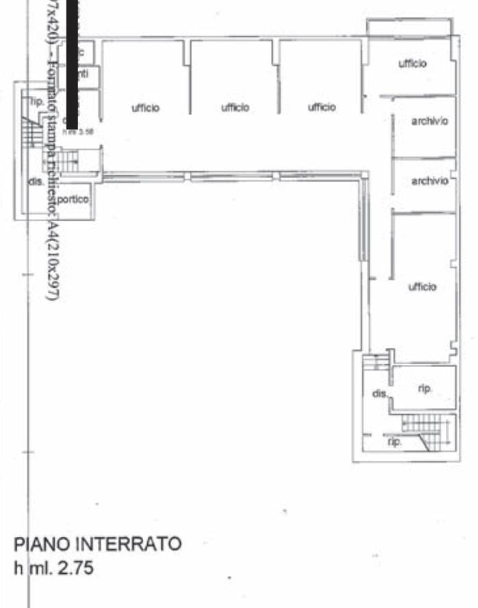
Compendio immobiliare situato a San Vendemiano (TV) in via Italia, costituto da magazzini con archivio e locale deposito al piano terra; uffici, archivi, servizi e locali accessori ai piani interrato, terra e primo e pertinenziale area scoperta di catastali 1.496 metri quadri.

Stato di occupazione: Immobile libero.


22REB è a disposizione per valutare come la nostra esperienza potrà favorirti nel realizzare il tuo miglior investimento.


L'immobile è oggetto di vendita giudiziaria.

22REB non si occupa di attività di intermediazione imm. di cui alla legge 39/89.
 Per motivi di privacy la foto dell'immobile/terreno è indicativa ma non esaustiva.
Caratteristiche principali
Codice
GM4055/26
Città
San Vendemiano
Categoria
Ufficio
Prezzo
356.250 €
Locali
27
Mq
1197
Classe energetica
In fase di valutazione

Accessori: Ascensore

Mappa
Via Italia , San Vendemiano (TV)
Condividi su
Cookie preference