Italiano
English
Español
العربية
933.000 €

Capannone artigianale a Vigonza (PD)

Capannone in vendita • Vigonza - Via Regia
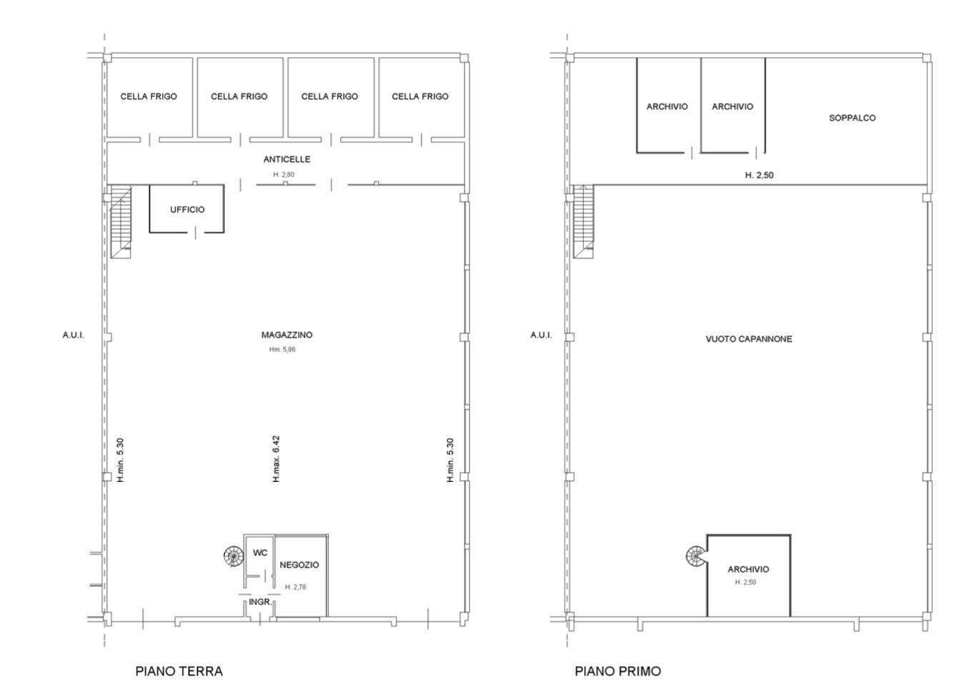
Capannone artigianale di circa 2.400 metri quadri composto da due corpi di fabbrica, area scoperta comune di 2.800 metri quadri e impianto fotovoltaico in copertura, situata a Vigonza (PD) in via Regia.


22REB è a disposizione per valutare come la nostra esperienza potrà favorirti nel realizzare il tuo miglior investimento.


L'immobile è oggetto di vendita giudiziaria.

22REB non si occupa di attività di intermediazione imm. di cui alla legge 39/89.
 Per motivi di privacy la foto dell'immobile/terreno è indicativa ma non esaustiva.
Caratteristiche principali
Codice
GM4061/26
Città
Vigonza
Categoria
Capannone
Prezzo
933.000 €
Locali
1
Mq
2400
Classe energetica
In fase di valutazione

Accessori: Ascensore

Mappa
Via Regia , Vigonza (PD)
Condividi su
Cookie preference