Italiano
English
Español
العربية
56.025 €

Appartamento a Sernaglia della Battaglia (TV)

Appartamento in vendita • Sernaglia della Battaglia - Via Castello
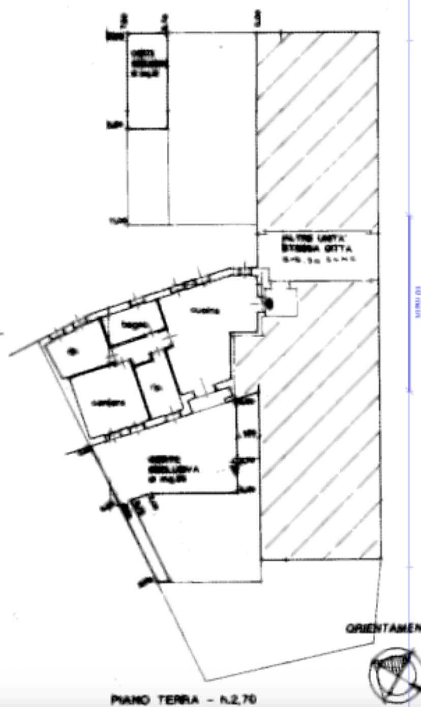
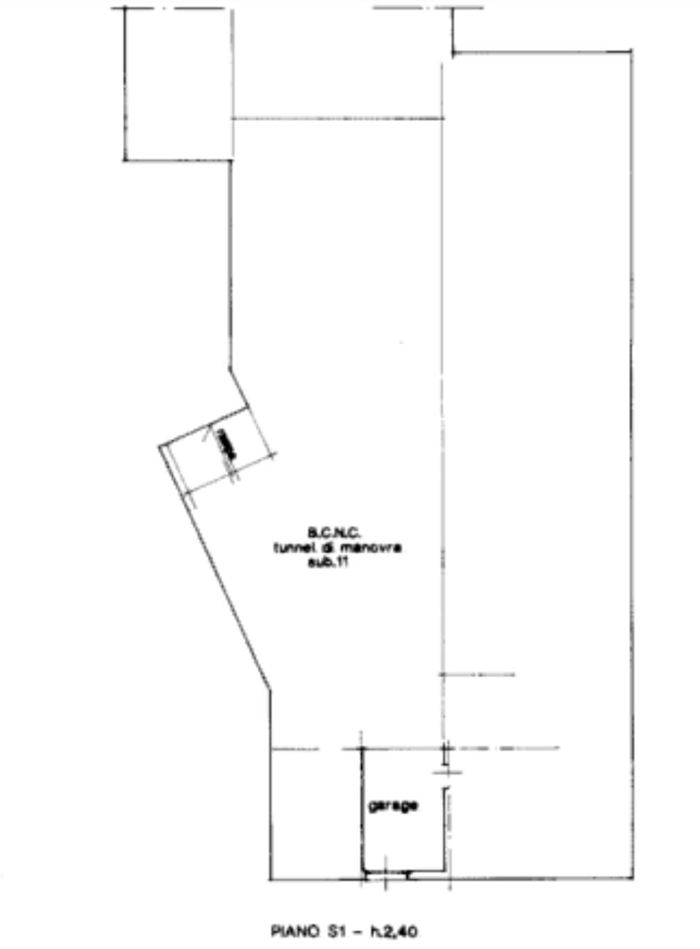
Appartamento al piano terra con annesse cantina al piano interrato e corti scoperte esclusive di complessivi mq. 48, pertinenziale garage al piano interrato e posto auto, il tutto situato a Sernaglia della Battaglia (TV) in via Castello. Abitazione composta da un ingresso, una cucina-soggiorno, corridoio del reparto notte con camera matrimoniale e due camerette ed un bagno.

Stato di occupazione: Immobile libero.


22REB è a disposizione per valutare come la nostra esperienza potrà favorirti nel realizzare il tuo miglior investimento.


L'immobile è oggetto di vendita giudiziaria.

22REB non si occupa di attività di intermediazione imm. di cui alla legge 39/89.
 Per motivi di privacy la foto dell'immobile/terreno è indicativa ma non esaustiva.
Caratteristiche principali
Codice
GM4078/26
Città
Sernaglia della Battaglia
Categoria
Appartamento
Prezzo
56.025 €
Locali
4
Camere
3
Bagni
1
Mq
82
Box
1
Mq Box
15
Classe energetica
In fase di valutazione

Accessori: Ascensore

Mappa
Via Castello , Sernaglia della Battaglia (TV)
Condividi su
Cookie preference