Italiano
English
Español
العربية
124.800 €

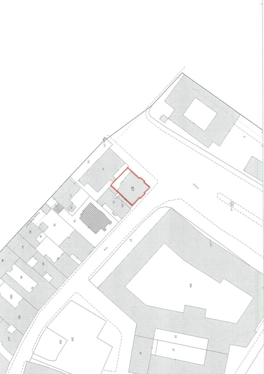
Appartamento a Padova (PD)

Appartamento in vendita • Padova - Via Trieste
Appartamento al piano primo composto da due vani e da un piano soppalcato, di superficie catastale mq. 63 posto all’interno di fabbricato condominiale, realizzato negli anni ’60 e successivamente ampliato e ristrutturato, costituito da un unico corpo di fabbrica, edificato su tre piani fuori terra, in cui sono presenti 11 unità residenziali ed una unità commerciale al piano terra; il tutto situato a Padova (PD) in via Trieste.

Stato di occupazione: Immobile libero.


22REB è a disposizione per valutare come la nostra esperienza potrà favorirti nel realizzare il tuo miglior investimento.


L'immobile è oggetto di vendita giudiziaria.

22REB non si occupa di attività di intermediazione imm. di cui alla legge 39/89.
 Per motivi di privacy la foto dell'immobile/terreno è indicativa ma non esaustiva.
Caratteristiche principali
Codice
GM4083/26
Città
Padova
Categoria
Appartamento
Prezzo
124.800 €
Locali
1,5
Camere
1
Bagni
1
Mq
63
Piano
1
Classe energetica
In fase di valutazione

Accessori: Ascensore

Mappa
Via Trieste , Padova (PD)
Condividi su
Cookie preference