Italiano
English
Español
العربية
139.000 €

Casa singola con uffici a Bassano del Grappa (VI)

Casa singola in vendita • Bassano del Grappa - Via Monte Passarin
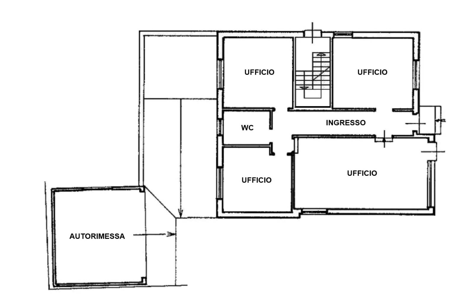
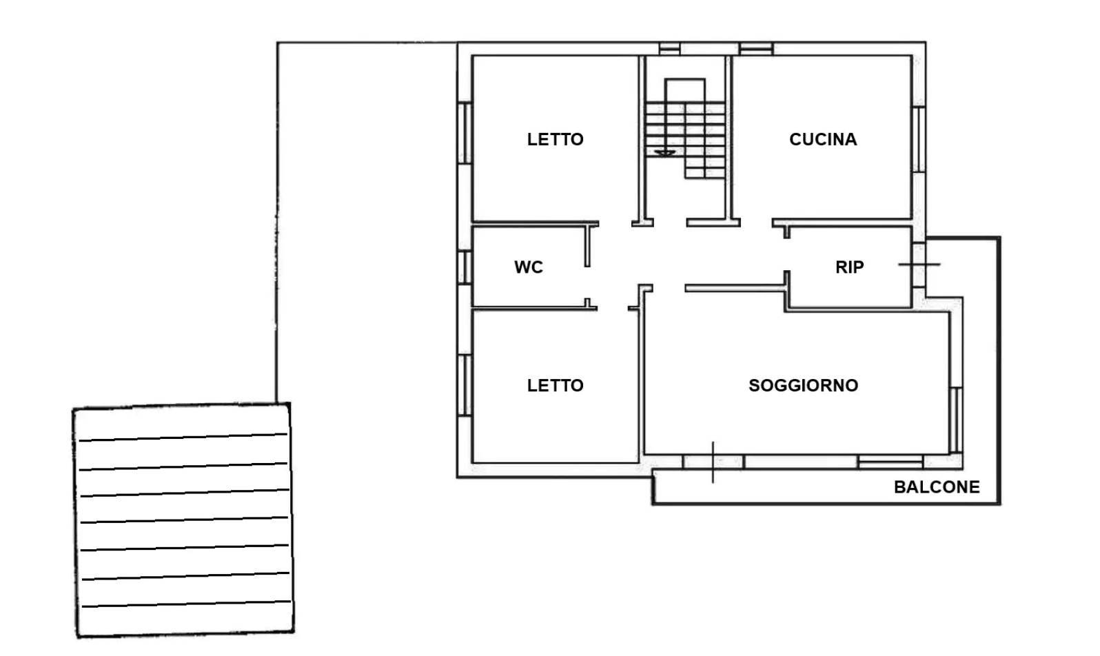
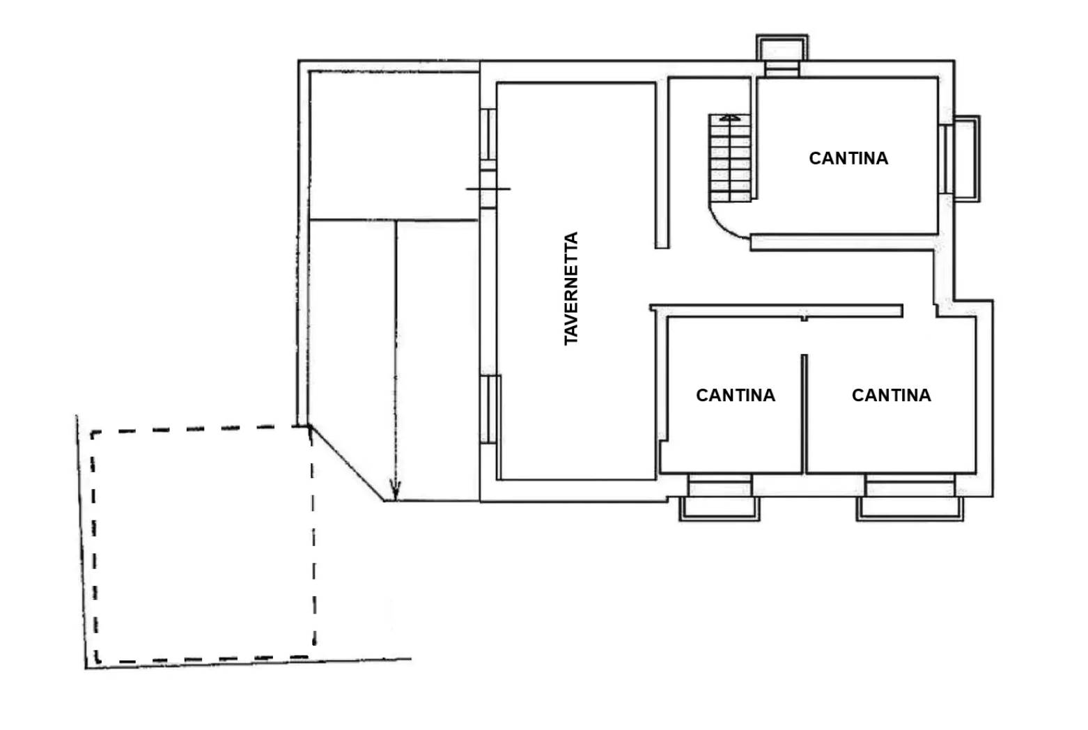
Casa singola su tre piani con autorimessa distaccata, giardino privato e vialetto carrabile con rampa situata a Bassano del Grappa (VI), quartiere Firenze in via Monte Passarin. Costituita al piano terra interamente uso uffici con vetrina e wc, oltre a vano scala di servizio per altri livelli; al piano primo con soggiorno, una cucina, bagno, ripostiglio, due camere letto e balcone angolare. Al Piano seminterrato servito da scala e rampa, con tavernetta e tre ambienti ad uso cantine.

Oggetto di vendita: La Procedura Concorsuale pone in vendita esclusivamente la quota di proprietà pari al 50%, di propria titolarità. L’aggiudicatario della quota posta in vendita acquisirà pertanto la qualità di comproprietario dell’immobile, con ogni conseguenza di legge. Il predetto comproprietario ha manifestato la propria disponibilità a valutare, in via autonoma e non vincolante, eventuali proposte di acquisto della quota di sua proprietà.


22REB è a disposizione per valutare come la nostra esperienza potrà favorirti nel realizzare il tuo miglior investimento.


L'immobile è oggetto di vendita giudiziaria.

22REB non si occupa di attività di intermediazione imm. di cui alla legge 39/89.
 Per motivi di privacy la foto dell'immobile/terreno è indicativa ma non esaustiva.
Caratteristiche principali
Codice
$GM4084/26
Città
Bassano del Grappa
Categoria
Casa singola
Prezzo
139.000 €
Locali
12
Camere
2
Bagni
1
Mq
384
Classe energetica
In fase di valutazione

Accessori: Ascensore

Mappa
Via Monte Passarin , Bassano del Grappa (VI)
Condividi su
Cookie preference