Italiano
English
Español
العربية
324.750 €

Casa singola a Monticello Conte Otto (VI)

Casa singola in vendita • Monticello Conte Otto - Via Girolamo Selmo
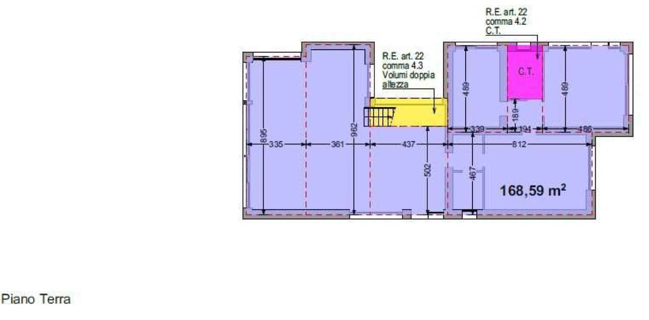
Edificio unifamiliare su due livelli, attualmente allo stato grezzo avanzato, con giardino di proprietà esclusiva situato a Monticello Conte Otto (VI) in via Girolamo Selmo. Al piano terra si trovano una ampia zona open-space ad uso soggiorno e cucina-pranzo, un disimpegno, un bagno, uno studio, una “stanza”, il locale ad uso centrale termica ed il garage; al piano primo con il collegamento interno da realizzarsi con scala ad una rampa, si trovano tre camere da letto, due bagni e due terrazze.


22REB è a disposizione per valutare come la nostra esperienza potrà favorirti nel realizzare il tuo miglior investimento.


L'immobile è oggetto di vendita giudiziaria.

22REB non si occupa di attività di intermediazione imm. di cui alla legge 39/89.
 Per motivi di privacy la foto dell'immobile/terreno è indicativa ma non esaustiva.
Caratteristiche principali
Codice
GM4085/26
Città
Monticello Conte Otto
Categoria
Casa singola
Prezzo
324.750 €
Locali
1
Camere
3
Bagni
3
Mq
275,37
Box
1
Mq Box
31,29
Classe energetica
In fase di valutazione

Accessori: Ascensore

Mappa
Via Girolamo Selmo , Monticello Conte Otto (VI)
Condividi su
Cookie preference