Italiano
English
Español
العربية
125.250 €

Duplex ad Arzignano (VI)

Duplex in vendita • Arzignano - Via Cisalpina
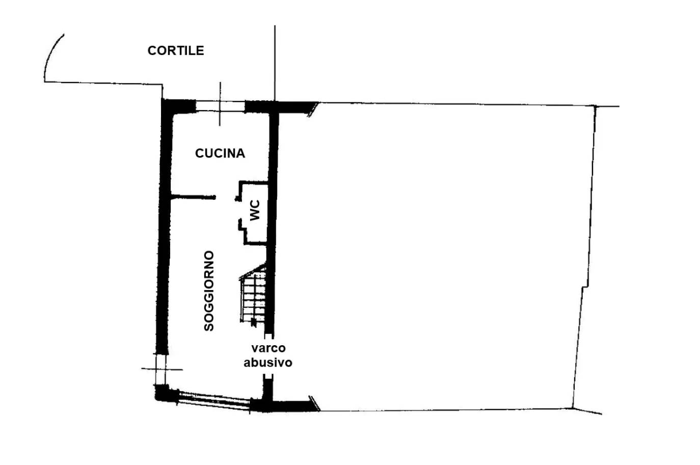
Duplex ai piani terra e primo con annessa autorimessa situato ad Arzignano (VI) in via Cisalpina angolo via Castellana, composto da un ingresso, un soggiorno, una cucina, un balcone, due servizi igienici, giardino, scala e due camere da letto.

Stato di occupazione: Immobile occupato con titolo opponibile alla procedura.


22REB è a disposizione per valutare come la nostra esperienza potrà favorirti nel realizzare il tuo miglior investimento.


L'immobile è oggetto di vendita giudiziaria.

22REB non si occupa di attività di intermediazione imm. di cui alla legge 39/89.
 Per motivi di privacy la foto dell'immobile/terreno è indicativa ma non esaustiva.
Caratteristiche principali
Codice
GM4093/26
Città
Arzignano
Categoria
Duplex
Prezzo
125.250 €
Locali
4
Camere
2
Bagni
2
Mq
120,14
Box
1
Mq Box
34
Classe energetica
In fase di valutazione

Accessori: Ascensore

Mappa
Via Cisalpina , Arzignano (VI)
Condividi su
Cookie preference