Italiano
English
Español
العربية
103.500 €

Ufficio ad Arzignano (VI)

Ufficio in vendita • Arzignano - Via Cisalpina
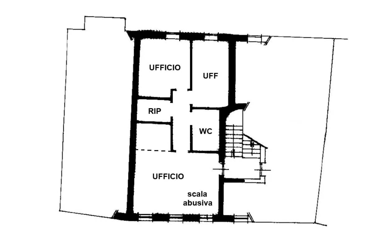
Ufficio al piano primo di edifico ristrutturato situato ad Arzignano (VI) in via Cisalpina angolo via Castellana, composto da tre ambienti principali, ripostiglio e bagno cieco, sono inclusi due garage ed un posto auto in interrato.


22REB è a disposizione per valutare come la nostra esperienza potrà favorirti nel realizzare il tuo miglior investimento.


L'immobile è oggetto di vendita giudiziaria.

22REB non si occupa di attività di intermediazione imm. di cui alla legge 39/89.
 Per motivi di privacy la foto dell'immobile/terreno è indicativa ma non esaustiva.
Caratteristiche principali
Codice
GM4094/26
Città
Arzignano
Categoria
Ufficio
Prezzo
103.500 €
Locali
3
Bagni
1
Mq
80,43
Box
2
Posti auto
1
Piano
1
Classe energetica
In fase di valutazione

Accessori: Ascensore

Mappa
Via Cisalpina , Arzignano (VI)
Condividi su
Cookie preference