Italiano
English
Español
العربية
54.000 €

Appartamento a Monticello Conte Otto (VI)

Appartamento in vendita • Monticello Conte Otto - Via Europa
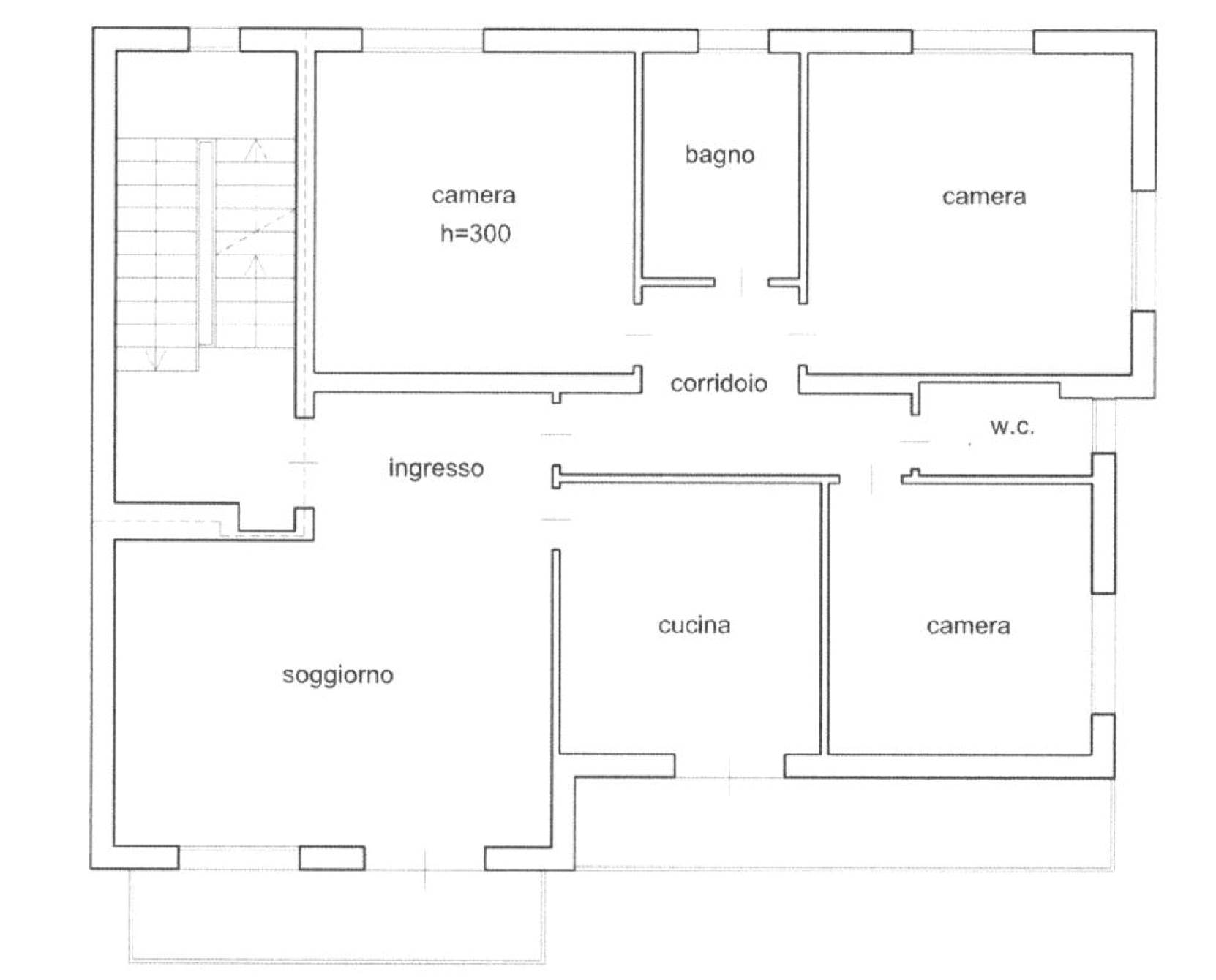
Appartamento ubicato al piano primo di un fabbricato a destinazione mista commerciale-residenziale su tre piani fuori terra situato a Monticello Conte Otto (VI) in via Europa. L’appartamento risulta composto da ingresso e soggiorno, cucina, disimpegno, tre camere da letto, servizio igienico e bagno, oltre due terrazze.

Stato di occupazione: Immobile libero.


22REB è a disposizione per valutare come la nostra esperienza potrà favorirti nel realizzare il tuo miglior investimento.


L'immobile è oggetto di vendita giudiziaria.

22REB non si occupa di attività di intermediazione imm. di cui alla legge 39/89.
 Per motivi di privacy la foto dell'immobile/terreno è indicativa ma non esaustiva.
Caratteristiche principali
Codice
GM4123/26
Città
Monticello Conte Otto
Categoria
Appartamento
Prezzo
54.000 €
Locali
6,5
Camere
3
Bagni
2
Mq
124,19
Piano
1
Classe energetica
In fase di valutazione

Accessori: Ascensore

Mappa
Via Europa , Monticello Conte Otto (VI)
Condividi su
Cookie preference