Italiano
English
Español
العربية
537.198 €

Ristornate a Santa Maria di Sala (VE)

Negozio in vendita • Santa Maria di Sala (Stigliano) - Via Muson
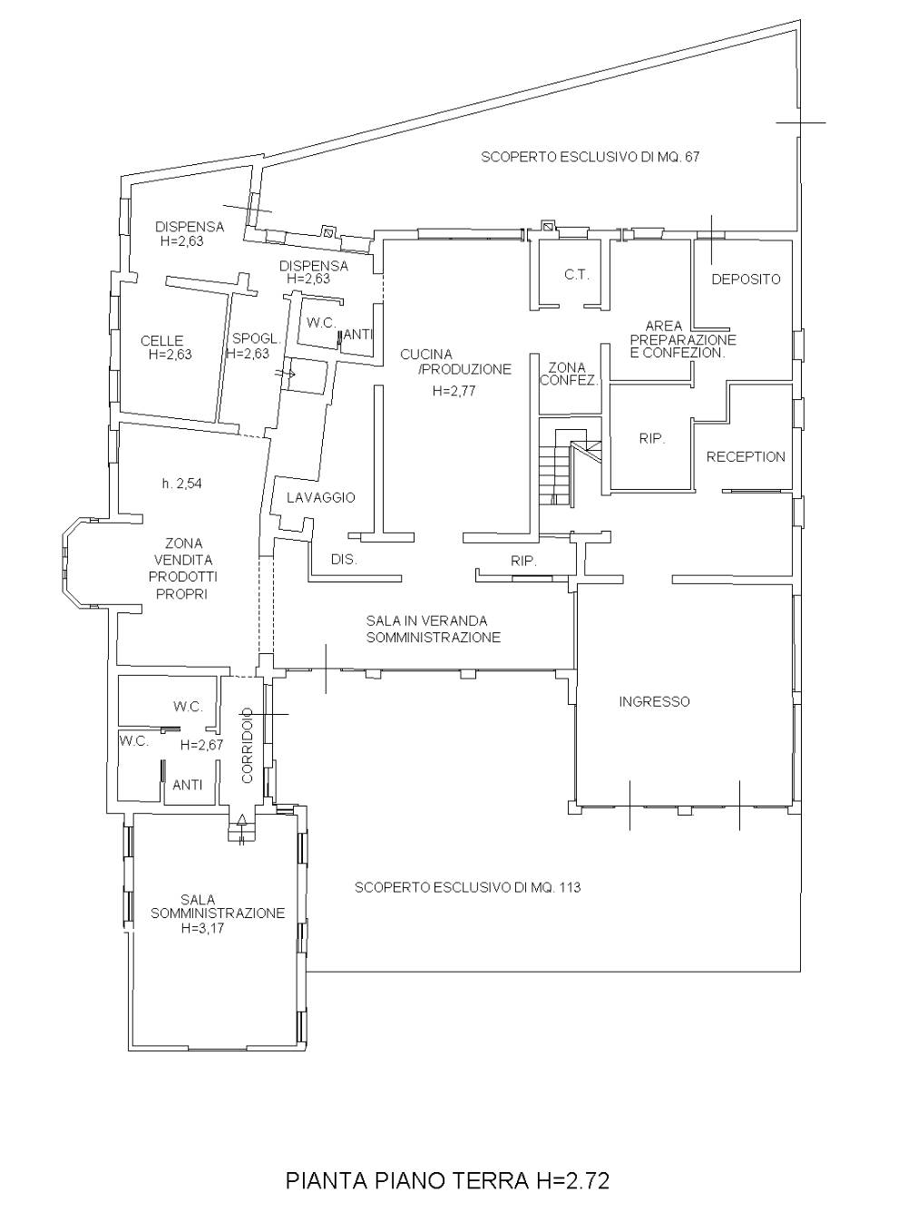
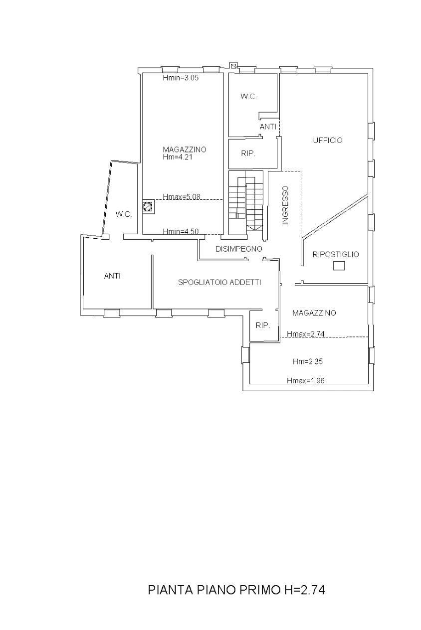
Porzione principale di villa adibita a ristorante, di origine ottocentesca denominata "Villa Orsoni" e sviluppata su due livelli fuori terra e corredata sul fronte nord e sud da scoperto esclusivo, situata a Santa Maria di Sala (VE), località Stigliano in via Muson. L'unità immobiliare ad uso ristorante presenta uno sviluppo terra-cielo corredata di scoperto a uso esclusivo sul fronte nord prospiciente via Muson e sul fronte Sud, per una superficie commerciale complessiva del ristorante per circa 651,40 metri quadri.

Stato di occupazione: Immobile libero.


22REB è a disposizione per valutare come la nostra esperienza potrà favorirti nel realizzare il tuo miglior investimento.


L'immobile è oggetto di vendita giudiziaria.

22REB non si occupa di attività di intermediazione imm. di cui alla legge 39/89.
 Per motivi di privacy la foto dell'immobile/terreno è indicativa ma non esaustiva.
Caratteristiche principali
Codice
GM4127/26
Città
Santa Maria di Sala (Stigliano)
Categoria
Negozio
Prezzo
537.198 €
Locali
1
Mq
651,4
Classe energetica
In fase di valutazione

Accessori: Ascensore

Mappa
Via Muson , Santa Maria di Sala (VE)
Condividi su
Cookie preference