Italiano
English
Español
العربية
52.500 €

Appartamento a Chioggia (VE)

Appartamento in vendita • Chioggia - Via Pegorina
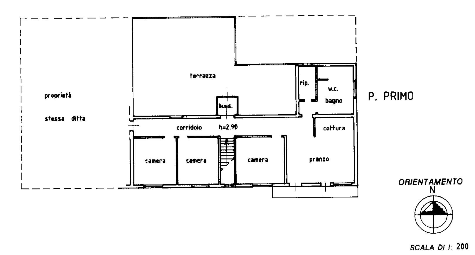
Appartamento al piano primo situato a Chioggia (VE) in via Pegorina, composto da un ingresso, sala da pranzo con angolo cottura, poggiolo, ripostiglio, un bagno, tre camere da letto ed una veranda.

Stato di occupazione: Immobile libero.


22REB è a disposizione per valutare come la nostra esperienza potrà favorirti nel realizzare il tuo miglior investimento.


L'immobile è oggetto di vendita giudiziaria.

22REB non si occupa di attività di intermediazione imm. di cui alla legge 39/89.
 Per motivi di privacy la foto dell'immobile/terreno è indicativa ma non esaustiva.
Caratteristiche principali
Codice
GM4157/26
Città
Chioggia
Categoria
Appartamento
Prezzo
52.500 €
Locali
5,5
Camere
3
Bagni
1
Mq
215,46
Piano
1
Classe energetica
In fase di valutazione

Accessori: Ascensore

Mappa
Via Pegorina , Chioggia (VE)
Condividi su
Cookie preference