Italiano
English
Español
العربية
126.750 €

Unità commerciale a Ponte nele Alpi (BL)

Negozio in vendita • Ponte nelle Alpi - Viale Dolomiti
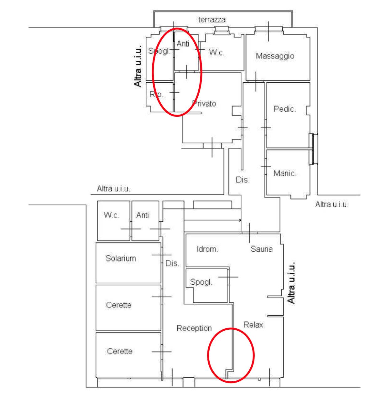
Unità immobiliare ad uso commerciale situata nel Comune di Ponte nelle Alpi (BL) in viale Dolomiti, al piano terra di un più ampio fabbricato denominato “Condominio Dolomiti”, l’immobile adibito ad attività di estetica, sviluppa una superficie commerciale complessiva di circa 165 metri quadri.

Stato di occupazione: Immobile libero.


22REB è a disposizione per valutare come la nostra esperienza potrà favorirti nel realizzare il tuo miglior investimento.


L'immobile è oggetto di vendita giudiziaria.

22REB non si occupa di attività di intermediazione imm. di cui alla legge 39/89.
 Per motivi di privacy la foto dell'immobile/terreno è indicativa ma non esaustiva.
Caratteristiche principali
Codice
GM4161/26
Città
Ponte nelle Alpi
Categoria
Negozio
Prezzo
126.750 €
Locali
1
Mq
165
Classe energetica
In fase di valutazione

Accessori: Ascensore

Mappa
Viale Dolomiti , Ponte nelle Alpi (BL)
Condividi su
Cookie preference