Italiano
English
Español
العربية
82.687 €

Appartamento a Rocca Priora (RM)

Appartamento in vendita • Rocca Priora - Via S. Cesareo
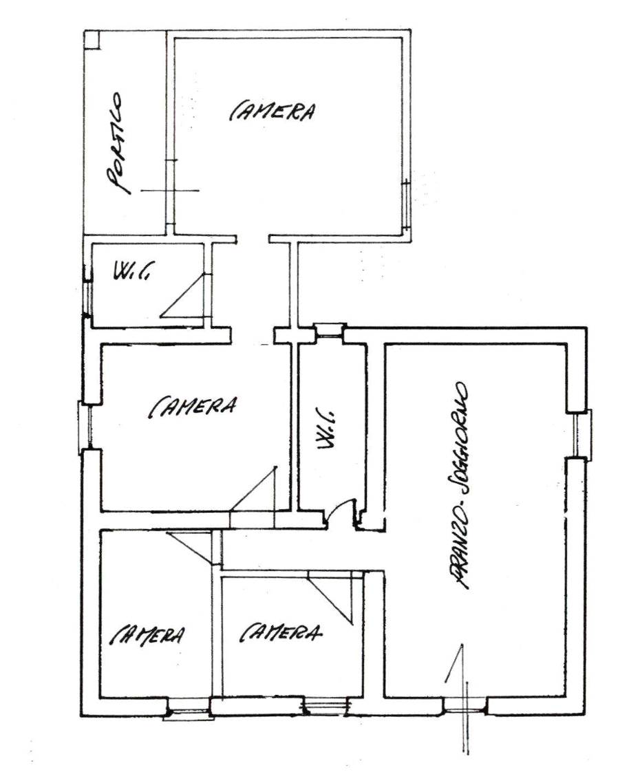
Appartamento al piano terra con annesso posto auto ubicato a Rocca Priora (RM), località “Colle di Fuori” con accesso dalla via San Cesareo, composto da salone con angolo cottura, ingresso, quattro camere da letto, piccolo portico, due bagni e con annessa corte di pertinenza di 320 mq.


22 REB opera a livello internazionale e mette a tua disposizione professionisti specializzati nel mondo delle aste immobiliari, con assistenza legale qualificata durante l’intera procedura.

Grazie al nostro broker partner è possibile valutare mutui e finanziamenti anche per acquisti all’asta.

Filiali operative: Treviso • Padova • Vicenza • Bassano del Grappa • Roma • Bergamo – prenota un appuntamento informativo per scoprire come funziona il settore delle aste immobiliari.

In ufficio potrai inoltre accedere a opportunità immobiliari riservate, parte di un portafoglio di immobili non pubblicati sui portali o di prossima uscita.

L’immobile è oggetto di vendita giudiziaria.

22REB non svolge attività di intermediazione immobiliare ai sensi della Legge 39/89. Le immagini sono indicative e non necessariamente rappresentative del bene.
Caratteristiche principali
Codice
GM4227/26
Città
Rocca Priora
Categoria
Appartamento
Prezzo
82.687 €
Locali
4
Camere
4
Bagni
2
Mq
159
Classe energetica
In fase di valutazione

Accessori: Ascensore

Mappa
Via S. Cesareo , Rocca Priora (RM)
Condividi su
Cookie preference