Italiano
English
Español
العربية
107.250 €

Locale commerciale a Roma (RM)

Negozio in vendita • Roma - Via Pietro Gasparri
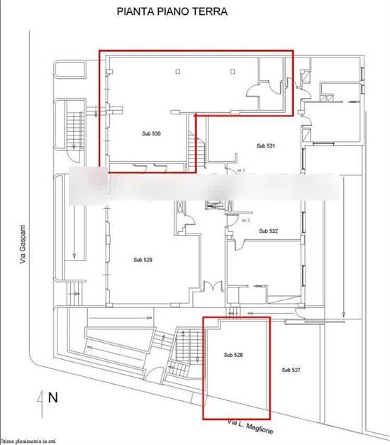
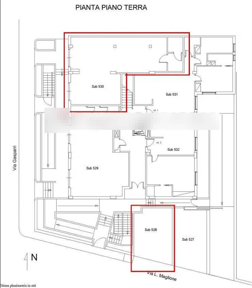
Locale commerciale al piano terra con annessi posti auto e moto situato in Roma (RM) in via Gasparri, dotato di due vetrine su via Gasparri ed è formato da due ambienti, di cui uno meno profondo destinato a cucina con canna fumaria e uno più profondo dotato sul retro di area ripostiglio, bagni e spogliatoi per il personale.

Stato di occupazione: L'immobile risultava occupato da terzi con contratto di locazione opponibile alla procedura esecutiva, registrato in data 11/09/2018, avente durata di anni 6+6 con decorrenza dal 01/09/2018 già rinnovatosi fino al 31/08/2030, al canone mensile di euro 1.300,00. L'immobile è stato rilasciato dal conduttore al Custode Giudiziario ed è attualmente libero.


22 REB opera a livello internazionale e mette a tua disposizione professionisti specializzati nel mondo delle aste immobiliari, con assistenza legale qualificata durante l’intera procedura.

Grazie al nostro broker partner è possibile valutare mutui e finanziamenti anche per acquisti all’asta.

Filiali operative: Treviso • Padova • Vicenza • Bassano del Grappa • Roma • Bergamo – prenota un appuntamento informativo per scoprire come funziona il settore delle aste immobiliari.

In ufficio potrai inoltre accedere a opportunità immobiliari riservate, parte di un portafoglio di immobili non pubblicati sui portali o di prossima uscita.

L’immobile è oggetto di vendita giudiziaria.

22REB non svolge attività di intermediazione immobiliare ai sensi della Legge 39/89. Le immagini sono indicative e non necessariamente rappresentative del bene.
Caratteristiche principali
Codice
GM4230/26
Città
Roma
Categoria
Negozio
Prezzo
107.250 €
Locali
1
Bagni
1
Mq
73
Box
9
Mq Box
83
Classe energetica
In fase di valutazione

Accessori: Ascensore

Mappa
Via Pietro Gasparri , Roma (RM)
Condividi su
Cookie preference